Beschreibung
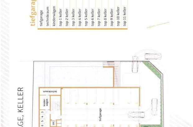
Zum Verkauf gelangen insgesamt 7 Tiefgaragenstellplätze in einer modernen Wohnanlage in gefragter Lage von Graz. Dieses Angebot richtet sich sowohl an Anleger, da bereits alle vermietet sind, als auch an Eigennutzer, die auf der Suche nach sicheren und gut erreichbaren Parkmöglichkeiten sind. Die Stellplätze befinden sich in einer gepflegten Tiefgarage und bieten optimalen Schutz vor Witterungseinflüssen sowie zusätzlichen Komfort im Alltag. Die Zufahrt ist großzügig gestaltet und ermöglicht ein bequemes Ein- und Ausparken. Durch die geschützte Lage innerhalb der Garage sind die Fahrzeuge ganzjährig sicher untergebracht. Die Lage im Grazer Bezirk 8047 überzeugt durch eine gute Infrastruktur und eine stetig hohe Nachfrage nach Parkraum. Insbesondere in dicht bebauten Wohngebieten stellen Tiefgaragenplätze eine wertvolle und zunehmend gefragte Ressource dar - sowohl für Anrainer als auch für Pendler. Highlights des Angebots: 7 Tiefgaragenstellplätze im Paket oder einzeln erwerbbar Sichere
und witterungsgeschützte Unterbringung Bequeme Zufahrt und ausreichend Rangierfläche Gepflegte Anlage in moderner Wohnumgebung Attraktive Lage mit hoher Nachfrage nach Parkplätzen Ob als Ergänzung zu einer bestehenden Immobilie oder als eigenständiges Investment - Tiefgaragenstellplätze bieten eine stabile und wartungsarme Einnahmequelle mit überschaubarem Verwaltungsaufwand. Gerne übermitteln wir Ihnen weitere Details zu den einzelnen Stellplätzen sowie zu möglichen Renditen und stehen für Rückfragen jederzeit zur Verfügung unter [Tel] Tiefgaragenabstellplätze zum Preis von jeweils € 23.000,- Breite: 2,50 m Es können auch alle Tiefgaragenabstellplätze auf einmal erworben werden: € 161.000,- Wir weisen darauf hin, dass zwischen dem Vermittler und dem zu vermittelnden Dritten ein familiäres oder wirtschaftliches Naheverhältnis besteht. Der Vermittler ist als Doppelmakler tätig. Lage: Der Tiefgaragenstellplatz am Mosconweg 8047 in Graz besticht durch seine zentrale Lage. In unmittelbarer Nähe finden Sie Arztpraxen, eine Apotheke, eine Klinik sowie Kindergarten und Universität. Einkaufsmöglichkeiten wie Supermarkt und Bäckerei sind bequem erreichbar. Bank, Post, Geldautomat sowie Bus- und Straßenbahnanschlüsse gewährleisten optimale Infrastruktur und Mobilität.... [Mehr]