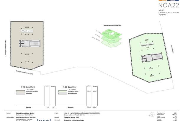
NOA22_Ordinationen in der Seestadt Aspern! Provisionsfrei!

1220 Wien / 700m²

#Büro #Ordination #Garten #Parkmöglichkeit #Terrasse

Beschreibung

Neues Ordinationszentrum Aspern ? NOA22 Hier wird der Traum von der eigenen Ordination Wirklichkeit. Mit dem Projekt NOA22 entsteht ein modernes, zukunftsorientiertes medizinisches Zentrum, das Raum für ein breites Spektrum medizinischer Dienstleistungen bietet. Das Ordinationszentrum überzeugt durch eine hochwertige Architektur, flexible Nutzungsmöglichkeiten und ein nachhaltiges Gesamtkonzept ? ideal für Ärzt: innen, Therapeut: innen und Gesundheitsdienstleister, die ihren Standort langfristig erfolgreich etablieren möchten. Das Gebäude setzt auf Nachhaltigkeit und Effizienz: Eine Photovoltaikanlage am Dach, die Wärmebereitstellung über Erdwärmesonden sowie eine Sole/Wasser-Wärmepumpe sorgen für ressourcenschonenden Betrieb und nachhaltig niedrigere Energiekosten. Das Projekt erfüllt sowohl die Kriterien der ÖGNI Gold Zertifizierung als auch die Qualitätsanforderungen von TQB 800.Ein begrünter Dachgarten im ersten Obergeschoß steht allen Mieter: innen als attraktive Aufenthalts- und Erholungsfläche... [Mehr]