Beschreibung
ZUR VERMIETUNG *
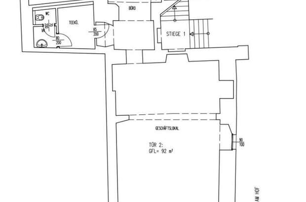
GESCHÄFTSLOKAL + AM HOF Zur Vermietung gelangt dieses
Geschäftslokal in fantastischer Lage, direkt am Hof im 1.Bezirk. Die Fläche befindet sich im geschichtsträchtigen Palais Collalto. Parkmöglichkeiten gibt es in der Parkgarage "am Hof" direkt vor dem Haus. INFRASTRUKTUR + HIGHLIGHTS AUF EINEN BLICK • sehr repräsentative Firmenadresse • wunderschönes Palais • Fernwärme • Teeküche • sehr gute öffentliche Verkehrsanbindung • hervorragende Auswahl an Gastronomie-Einrichtungen in der nahen Umgebung • ausgezeichnete Nahversorgung • Parkgarage "Am Hof" direkt vor dem Haus DIE MONATLICHE KOSTENAUFSTELLUNG WIE FOLGT • HMZ netto: € 3411,40 • BK netto: € 152,13 • Heizungsakonto: € 142,91 • zzgl. Steuer: 20% MwSt. • Gesamtmiete/Monat "WARM" € 4447,72 • zzgl. Strom je nach Verbrauch und Dienstleister ERSTZAHLUNG UND VERTRAGSKONDITIONEN • Vergebührung für das Finanzamt • Provision: 3 Monatsmieten • Kaution: 6 Monatsmieten • Erste Monatsmiete • Befristung 10J (Option auf Verlängerung)
• Kündigungsverzicht mieterseitig 3J • Kündigungsfrist 6 Monate MEHR INFOS UND DETAILS AUF ANFRAGE! KONTAKT Robert Fried, [Email], [Tel] Für Rückfragen stehe ich Ihnen selbstverständlich gerne zur Verfügung! Angaben gemäß gesetzlichem Erfordernis: Miete € 3411,4 zzgl 20% USt. Betriebskosten € 152,13 zzgl 20% USt. Umsatzsteuer € 712,71 Gesamtbetrag € 4276,24 Heizwärmebedarf: 108.5 kWh/(m²a) Klasse Heizwärmebedarf: D Faktor Gesamtenergieeffizienz: 2.03 Klasse Faktor Gesamtenergieeffizienz: D... [Mehr]