Beschreibung
DIE
MIETE:
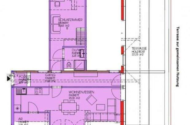
Miete Wohnung + Parkplatz monatlich brutto: EUR 557,70 Betriebs- und Heizkosten monatlich brutto: EUR 173,00 Bruttogesamtmietzins monatlich: EUR 730,70 * Die Kaution: 3 Bruttomonatsmieten (Bruttomiete + Bruttobetriebskosten) * Ab sofort. * Der Mietvertrag wird auf 5 Jahre befristet abgeschlossen ECKDATEN: Zimmer 24,77 m² Bad / WC 3,41 m² Kellerabteil 4,06 m² AUSSTATTUNG: * Dieses möblierte WG-Zimmer verfügt über eine Wohnfläche von 28,18 m². * Besonderheit ist ein eigenes Badezimmer mit WC, Dusche, Waschbecken und Handtuchheizkörper. * Zum Zimmer zugehörig ist ein Parkplatz sowie ein Kellerabteil. * Zur gemeinsamen Nutzung mit den anderen zwei WG-Mitgliedern steht ein Wohn-Koch-Essbereich ausgestattet zur Verfügung. * Der großzügige Balkon bietet genügend Platz zum gemeinsamen Zusammensitzen. * Allgemeinräumlichkeiten wie Wasch- und Trockenraum (mit Waschmaschine & Trockner) stehen zur Mitbenutzung zur Verfügung. KONTAKT Für detaillierte Informationen oder für eine Besichtigung
der Wohnung steht Ihnen unser Team sehr gerne zur Verfügung: Christoph Ebli [Tel] NEBENKOSTEN Sämtliche hier gemachten Angaben sind lediglich unverbindliche Vorinformationen, die nach bestem Wissen erfolgen, jedoch ohne Gewähr. Insbesondere kann es sich bei den vorliegenden Angaben um nicht auf Richtigkeit und / oder Vollständigkeit geprüfte Angaben von Dritten handeln, für welche wir ausdrücklich keine Haftung übernehmen. Sämtliche Angebote sind freibleibend, Irrtum und Zwischenverwertung bleiben vorbehalten. Bitte beachten Sie weiter, dass wir auf Grund unserer Nachweispflicht gegenüber dem Eigentümer nur jene Anfragen bearbeiten können, die mit vollständiger Angabe des Namens und der Kontaktdaten des Interessenten einlangen. Wir weisen darauf hin, dass zwischen der Hillebrand Immobilienmakler GmbH und dem Vermieter / Eigentümer der Immobilie ein wirtschaftliches bzw. familiäres Naheverhältnis besteht. Noch nichts gefunden? Wir informieren Sie über ge... [Mehr]