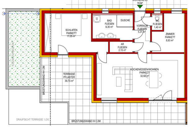
BAUSTART April 2026 - Exklusive Penthouse-Eigentumswohnung (75m²) mit großer Terrasse und Lift in Fürstenfeld! Provisionsfrei!

8280 Fürstenfeld / 75,95m² / 3 Zimmer

#Dachgeschoss #Parkmöglichkeit #Terrasse #barrierefrei

Beschreibung

BAUSTART April 2026 In Fürstenfeld entstehen 24 moderne Eigentumswohnungen mit einer Wohnfläche von geräumigen 45 m² bis hin zu großzügigen 80 m². Alle Wohnungen sind mit Terrassen ausgestattet. Die Eigentumswohnungen im Erdgeschoß verfügen über Eigengärten mit einer Größe von 30 m² bis 55 m². Die Wohnungen sind folgendermaßen aufgeteilt: Vorraum 1-3 Schlafzimmer Wohn-Essbereich mit Küchenbereich Bad WC Abstellraum Die Terrassen verfügen über eine Größe von 12 m² bis hin zu 71 m². Das in Massivbauweise gebaute Wohnhaus ist barrierefrei und bietet einen Lift. Weiters erfolgt die Beheizung mittels Fußbodenheizung über eine Luftwärmepumpe. Im Kaufpreis sind ein Kellerersatzraum und ein Carport inbegriffen. Ein zweiter Parkplatz kann um 7.200,- EUR erworben werden. Baustart: Frühjahr 2026 Verfügbar ab: Frühjahr 2027