Beschreibung
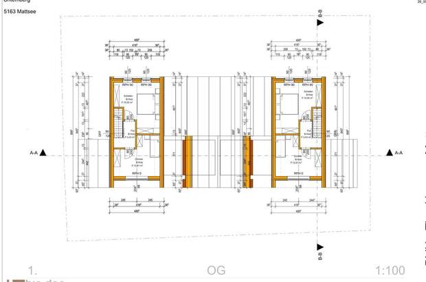
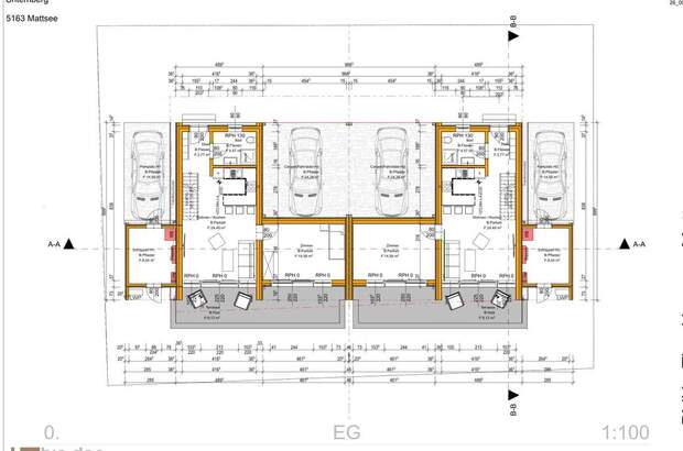
Das bestehende Gesamtgrundstück soll in mehrere Teile geteilt werden. Hier handelt es sich um das östliche Teilgrundstück und den Hälfteanteil an der Zufahrt, insgesamt 265 m². Die Kosten der Grundteilung und Bauplatzerklärung (z B Architekten- und Geometerkosten) sind anteilig von den Käufern zu tragen. Eine Baubewilligung liegt derzeit noch nicht vor, die künftige Grundteilung ist mit der Baubehörde vor besprochen und wird gemeinsam mit der Erteilung der Bauplatzerklärung (je auf Kosten der Käufer) Bestandteil des Kaufanbotes und Kaufvertrages. Grundpreis: € 212.000,- Es besteht ein Entwurf für ein optionales Generalunternehmerangebot, welches neben dem Grundstückserwerb gesondert beauftragt werden kann, Die Wohnfläche des Einfamilienhauses beträgt 75,77 m².. Über den Werklohn für das optionale schlüsselfertige Tiny House informieren wir Sie gerne persönlich. Die Bauzeit ist flexibel für 2026 bis 2027 angedacht.. Die Vertragserrichtung erfolgt durch die Kanzlei Rechtsanwälte Braun und
Königstorfer, Rainerstraße 9, 5020 Salzburg.... Wir weisen darauf hin, dass zwischen dem Vermittler und dem zu vermittelnden Dritten ein familiäres oder wirtschaftliches Naheverhältnis besteht. Der Vermittler ist als Doppelmakler tätig. Lage: Dieses Grundstück befindet sich in einem schicken Neubaugebiet. Das leicht ansteigende Grundstück liegt am Ende einer Stichstraße in absoluter Ruhelage. Im gepflegten Garten genießt man jeden Sonnenstrahl von Sonnenaufgang bis Sonnenuntergang. Das Ortszentrum von Mattsee mit zahlreichen Geschäften und Dienstleistern erreicht man in wenigen Fahrminuten. Über einen Radweg gelangt man geschützt zum nahegelegenen See, der zum Baden einlädt. Über die nahgelegene Buslinie erreicht man in ca. 25 Minuten das Zentrum der Kultur- und Festspielstadt Salzburg.... [Mehr]