Beschreibung
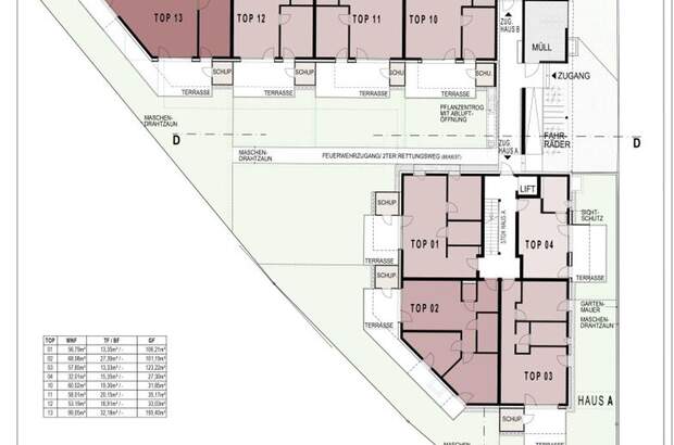
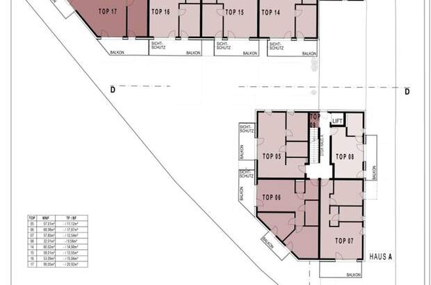
Residenz Viktoria: Wohnkomfort und Harmonie in der Kleinstadt In bester Lage, westlich vom Stadtzentrum Hall, entsteht eine repräsentative Wohnanlage, bestehend aus zwei Baukörpern und einer gemeinsamen Tiefgarage. Die Nähe zum Stadtzentrum, zur Infrastruktur, zu den Verkehrswegen und Erholungsgebieten macht dieses Wohnbauprojekt besonders begehrenswert. Die ansprechende Architektur, eingebettet in eine gute Nachbarschaft sowie attraktive Grünflächen und Gärten, schafft ein Wohnumfeld voller Lebensgefühl, Sicherheit und Komfort. 18
Wohnungen sind auf drei Ebenen geplant, mit Gärten, Terrassen und herrlichen Dachterrassen - alles gut durchdacht, für maximale Privatsphäre. Die wichtigsten technischen Daten: Stahlbeton Massivbauweise mit zeitgemäßer Wärme- und Trittschalldämmung energieeffizient, langlebig und hochwertig durchdachte barrierefreie und lichtdurchflutete
Wohnungen geschützte private Außenflächen großformatige Fenster- und Balkontüren, gehobene Ausstattung hochwertige Materialwahl
mit zeitgemäßen Standards Beschattungssystem (Raffstore) in allen Aufenthaltsräumen vorinstalliert Parkplätze und Lagerräume in der Tiefgarage Fernwärmeheizung und Fußbodenkühlung PV-Anlage zur Stromerzeugung, Personenlift Sonderwünsche möglich Der Baubeginn ist im Herbst geplant und nach einer Bauzeit von ca. 1,5 Jahren, werden die Wohnungen voraussichtlich im Sommer 2028 , an die neuen Eigentümer übergeben. Die Nebenkosten und die erste Kaufpreisrate in der Höhe von 10 % (bzw. 15 % für Investoren mit Ust.-Option) werden erst bei Baubeginn im Herbst fällig. Die zu erwartende Wertsteigerung der Immobilien und mietfreies Wohnen im Eigentum sind wichtige Aspekte, die den Immobilienkauf zusätzlich interessant machen! Bitte beachten Sie auch die mgl. Befreiung von der Grundbuchseintragungsgebühr in der Höhe von Euro 5.500,-, die bis Juni 2026 befristet ist. (Steuerbefreiung bis zu einem Kaufpreis von Euro 500.000, darüber hinaus anteilige Steuer). Weitere Details und Unterlagen erhalten Sie gerne in einem persönlichen Gespräch bei uns im Büro. Wir freuen uns auf Ihre Rückmeldung und beraten Sie gerne!... [Mehr]