Beschreibung
"Selbstbestimmt und sorgenfrei leben"... genau das macht betreutes Wohnen zur optimalen Lösung für ältere oder körperlich beeinträchtigte Menschen, die selbstbestimmt leben möchten und nur in gewissen Situationen Hilfe und Betreuung benötigen. Die Ausstattung der
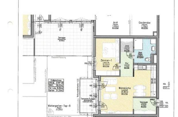
Wohnungen und das umfangreiche Betreuungsangebot der NÖ Volkshilfe sollen ein unabhängiges Leben in den eigenen vier Wänden ermöglichen. Traismauer, Wienerstraße 62/8 BETREUBARES WOHNEN: 2-Zimmer
Wohnung mit Terrasse und Garten in Traismauer Zur
Wohnung gehört ein Einlagerungsraum. Zielgruppe sind im Besonderen: - Ältere Menschen - Menschen mit leichtem bis mittlerem Pflegebedarf (Pflegegeldbezug, Rollstuhlfahrer) - Über 60-jährige mit schlechter Wohnsituation (kein Lift, schlechte Heizung, entlegene Lage) - Ältere Menschen oder Menschen mit Behinderung, die über Empfehlung der Mobilen Dienste aufgrund einer besonderen sozialen Situation vorgeschlagen werden. Voraussetzung für eine Anmietung der
Wohnung ist ein Betreuungsvertrag
mit der NÖ Volkshilfe in der Höhe von ca. € 55, ! Infrastruktur / Entfernungen Gesundheit Arzt <625m Klinik <650m Apotheke <900m Kinder & Schulen Schule <650m Kindergarten <950m Nahversorgung Supermarkt <100m Bäckerei <700m Einkaufszentrum <8.825m Sonstige Bank <675m Geldautomat <675m Post <875m Polizei <825m Verkehr Bus <275m Autobahnanschluss <2.350m Bahnhof <700m Angaben Entfernung Luftlinie / Quelle: Open Street Map Lage: Der Slogan der Stadtgemeinde "Traismauer - das Tor zum Herzen Niederösterreichs" bewahrheitet sich. Die zentrale Lage im Städtedreieck St.Pölten - Krems - Tulln, die sehr gute Verkehrsanbindung, auch durch die "St. Georgsbrücke" über die Donau nach Wien, die Bedeutung als Wirtschaftsstandort aber auch als Naherholungsgebiet sind gute Gründe, seine Zelte in der Stadtgemeinde Traismauer aufzuschlagen.... [Mehr]