Beschreibung
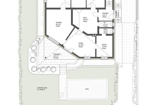
Das Einfamilienhaus in Bungalow-Stil wurde Anfang der 90er-Jahre in Massivbauweise errichtet und kontinuierlich erneuert sowie modernisiert. Das Erdgeschoss mit rund 130m² Nettonutzfläche ist leicht erhöht, wodurch das Kellergeschoss südseitig Tageslicht genießt. Im Erdgeschoss befindet sich eine moderne und voll ausgestatte Küche mit einer praktischen Speis, eine hochwertige Stube mit Kachelofen, das großzügige Wohnzimmer, zwei Schlafzimmer, ein großes Badezimmer, ein Gäste-WC sowie der repräsentative Vorraum. Südlich vorgelagert ist die vollüberdachte Terrasse, von der aus man über ein paar Treppen den ebenen Garten und die Poollandschaft erreicht. Im Nord-Ost-Eck befindet sich weiters noch eine große Garage. Das Kellergeschoss mit regulären Raumhöhen weist rund 150m² Nutzfläche auf und ist voll ausgebaut. Der Hobbyraum im Süden des Kellergeschosses genießt Tageslicht. Angrenzend befinden sich ein weiteres Badezimmer sowie Platz für den Einbau einer Küche. Durch den separaten Stiegenabgang
könnten diese Räumlichkeiten bestens als Einliegerwohnung oder Büroräume genutzt werden. Dieses Einfamilienhaus verfügt über ein sehr großzügiges Raumkonzept mit attraktiven Nutzungsmöglichkeiten. Zusätzlich liegt für dieses Einfamilienhaus ein Baubescheid von [Tel] für eine umfangreiche Aufstockung des Gesamtgebäudes vor. Die Aufstockung sieht zwei weitere Wohneinheiten im 1. Obergeschoss mit insgesamt rund 150m² Wohnfläche, großen Südbalkonen sowie eine Erweiterung der Parkmöglichkeiten vor. Mit dieser Immobilie offerieren wir ein besonderes Angebot in Bestlage mit viel Raum und vielfältigen Nutzungsmöglichkeiten sowie großem Entwicklungspotenzial - ideal für Familien oder für die Realisierung eines Wohnhauses für mehrere Generationen mit besten Vermietungsmöglichkeiten. Wir freuen uns über Ihr Interesse und über eine unverbindliche Terminvereinbarung! Detailinformationen zum Einfamilienhaus Schlossfeld und zu unseren anderen Immobilien in der Umgebung finden Sie auf unserer Homepage unter: www.immocenter.tirol/immobilien/ Kaufnebenkosten 3,50 % Grunderwerbsteuer 1,10 % Eintragung Eigentumsrecht Vermittlungshonorar 3,00 % netto + 20 % USt 1,80 % + 20 % USt Kaufvertragserrichtung Beglaubigungskosten Rechtlicher Hinweis Dieses freibleibende Angebot wird Ihnen von der IC Immobilien Service GmbH, welche als Makler tätig ist, überreicht. Alle Angaben erfolgen aufgrund der Informationen und Unterlagen, welche uns vom Eigentümer oder/und von Dritten übermittelt wurden, und sind ohne Gewähr. Hier finden Sie unsere Datenschutzinformation. Wir weisen darauf hin, dass zwischen dem Vermittler und dem zu vermittelnden Dritten ein familiäres oder wirtschaftliches Naheverhältnis besteht. Der Vermittler ist als Doppelmakler tätig.... [Mehr]