Beschreibung
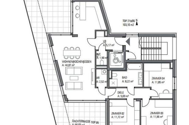
Penthouse-Feeling pur ? Wohnen über den Dächern mit Stil und Weitblick in Graz-Andritz! Ein kleines feines Neubauprojekt mit 2 Häusern und insgesamt 12 Wohneinheiten. Willkommen in Ihrer ganz persönlichen Wohlfühloase: Dieses traumhafte Penthouse im 2. Obergeschoss vereint modernes Design, großzügige Raumplanung und eine Terrasse, die jeden Tag zum Erlebnis macht. Auf rund 103? m² Wohnfläche erwarten Sie vier gut geschnittene Zimmer, die viel Platz für Individualität, Familie und Komfort bieten. Das Herzstück der
Wohnung ist der offen gestaltete Wohn-Essbereich, der durch bodentiefe Fenster lichtdurchflutet ist und direkt auf die spektakuläre 66? m² große Terrasse führt ? mit genug Platz für Lounge, Esstisch, Sonnenliegen und urbanes Gärtnern. Hier genießen Sie Sonne, Ruhe und einen unverbaubaren Blick ins Grüne und auf die umliegende Hügellandschaft ? ein echtes Highlight für alle, die draußen genauso gerne leben wie drinnen. Zwei geräumige Schlafzimmer, ein zusätzliches Zimmer (ideal
als Homeoffice, Gäste- oder Kinderzimmer), ein stilvolles Badezimmer, ein separates WC sowie ein praktischer Abstellraum runden das Raumangebot perfekt ab. Hochwertige Materialien, durchdachte Grundrisse und ein modernes Ambiente sorgen für exklusiven Wohnkomfort auf ganzer Linie. Diese Wohnung ist ein echtes Unikat für Genießer, die das Besondere suchen ? ob als stilvoller Rückzugsort, repräsentatives Zuhause oder zukunftssichere Wertanlage. Fakten zur Penthouse-Wohnung Top 5: WFL von 103m² 66m² Terrasse Wohn/Kochen/Essen mit 44,07m² sehr moderner Schnitt mit einer schrägen Wand 3 Schlafzimmer (11,96m²; 11,85m² & 11,72m²) Badezimmer 8,22m² mit Dusche und Badewanne, ohne Fenster WC 1,90m² mit Handwaschbecken, ohne Fenster Abstellraum mit 2,52m² Diele mit 5,69m² Vorraum mit 5,17m² KP brutto ? 799.000,00 für Endverbraucher KP netto ? 758.721,00 für die gewerbliche Vermietung KP Tiefgarage brutto ? 24.500,00 KP Tiefgarage netto ? 22.050,00 Highlights auf einen Blick: 4 Zimmer Terrasse mit Sonne & Ausblick 4 Zimmer, flexibel nutzbar Fußbodenheizung ruhige Lage mi... [Mehr]