Beschreibung
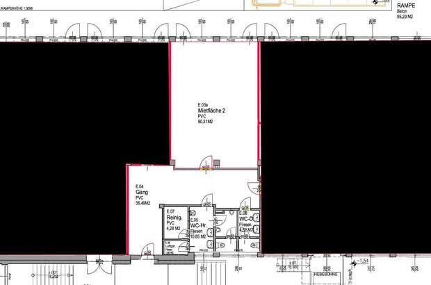
In der Brucker Bundesstraße 92-96 erwartet Sie im Erdgeschoss diese frisch renovierte Gewerbefläche mit einer Gesamtgröße von ca. 60m². Die Flächen eignen sich perfekt für Unternehmen, welche Büros als auch Lagerflächen benötigen. An der Vorderseite befindet sich neben den Treppen eine Zugangsrampe. An der Rückseite befindet sich über die gesamte Länge eine Laderampe für Lkw`s. Im Gangbereich befinden sich Toiletten zur Mitbenützung. Die Reinigungskosten sind in den Betriebskosten inkludiert. Ob als reine Lagerfläche oder Werkstatt/Produktion mit Büro - hier ist vieles möglich! Vor dem Gebäude befinden sich ausreichend Stellplätze, welche bei Bedarf separat angemietet werden können. 2 Stellplätze mit E-Ladestationen sind ebenfalls vorhanden. Wir freuen uns Ihnen diese Fläche bei einem persönlichen Termin näher präsentieren zu dürfen. Angaben gemäß gesetzlichem Erfordernis: Miete ? 603,1 zzgl 20% USt. Betriebskosten ? 120,62 zzgl 20% USt. Heizkosten ? 66,34 zzgl 20% USt. Umsatzsteuer ? 158,01
Gesamtbetrag ? 948,07 Heizwärmebedarf: 195.0 kWh/(m²a) Klasse Heizwärmebedarf: EFaktor Gesamtenergieeffizienz: 2.03Klasse Faktor Gesamtenergieeffizienz: E... [Mehr]