Beschreibung
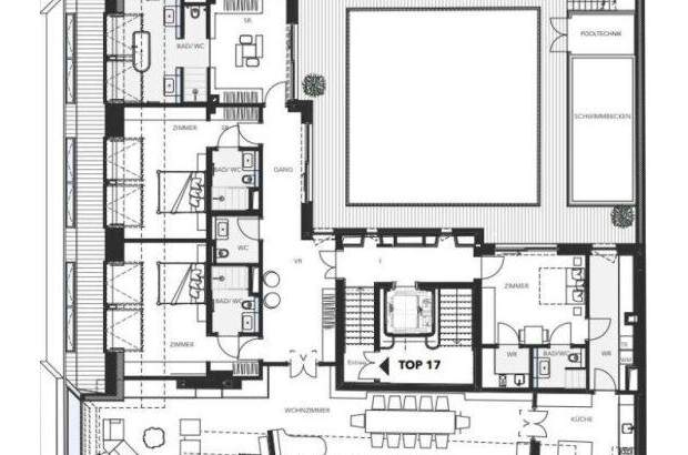
Das schönste Dach Wiens gehört Ihnen ? Exquisite Eleganz im exklusiven Penthouse des 1. Bezirks ? 3D-Tour ansehen! Erleben Sie Wohnen auf höchstem Niveau ? Ihr exklusives Penthouse in der Schellinggasse 12, 1010 Wien Willkommen in einer Residenz, die neue Maßstäbe für luxuriöses Wohnen setzt. Dieses einzigartige Penthouse im exklusiven 1. Wiener Bezirk vereint beeindruckende Architektur, herausragende Ausstattung und höchsten Wohnkomfort auf einer Wohnfläche von 362 m². Ein privater Aufzug führt Sie direkt in Ihr neues Zuhause, wo Sie ein großzügiger Grundriss, lichtdurchflutete Räume und edle Materialien auf Schritt und Tritt erwarten. Der weitläufige Wohnbereich mit raumhohen Panoramafenstern eröffnet atemberaubende Ausblicke auf die Skyline Wiens. Das absolute Highlight dieses Penthouses ist jedoch die spektakuläre Dachterrasse mit rund 248 m², die einen 360-Grad-Blick über die historischen Dächer der Stadt bietet ? inklusive direkter Sicht auf den Stephansdom. Ein privater Swimmingpool
mit Gegenstromanlage verleiht diesem exklusiven Rückzugsort zusätzlichen Luxus und Entspannung. Jeder Raum ist mit hochwertigster Ausstattung und raffinierten Details versehen, die den außergewöhnlichen Charakter dieser Immobilie unterstreichen. Die zentrale Lage im Herzen des 1. Bezirks vereint urbanes Lebensgefühl mit höchster Privatsphäre. Kulturelle Highlights, Gourmetrestaurants, Luxus-Boutiquen und charmante Cafés befinden sich nur wenige Schritte entfernt ? Sie wohnen hier an einer der renommiertesten Adressen Wiens. Dieses Penthouse ist mehr als ein Zuhause ? es ist ein Statement von Eleganz, Komfort und Prestige. 3D-Tour verfügbar Eckdaten Penthouse Top 17 Wohnfläche: 362,51 m² Obere Terrasse: 115,16 m² Dachterrasse: 133,12 m² mit 360°-Panoramablick, inkl. direkter Sicht auf den Stephansdom Swimmingpool: mit Gegenstromanlage, 17,29 m² Abstellraum: 8,83 m² Privater Weinkeller: 26,50 m² Raumhöhe: 2,65 m bis 3 m... [Mehr]