Beschreibung
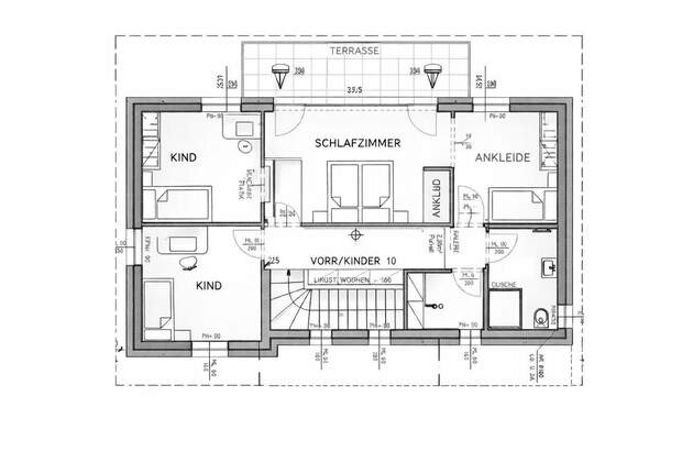
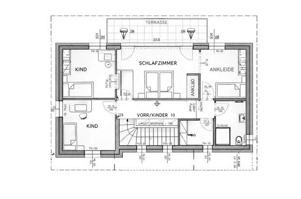
Suchen Sie ein Zuhause, das Ihnen Komfort und Entschleunigung bietet? Dann könnte dieses charmante Einfamilienhaus genau das Richtige für Sie sein. In idyllischer Lage, in der Nähe vom Schwarzlsee gelegen, bietet es Ihnen und Ihrer Familie viel Platz zum Leben und Wohlfühlen. Highlights: + Schlüsselfertig (ohne Küche) + 3 Schlafzimmer + Sehr gute Raumaufteilung + Helle Räume + Offener Wohn- und Essbereich + Sonniger Garten + Zwei Carportstellplätze Raumaufteilung: Die ca. 114 m² Wohnfläche verteilt sich auf zwei Ebenen. Durch den offenen, überdachten Eingangsbereich gelangen Sie in den Innenbereich der Anlage. Im Erdgeschoss gibt es einen Technikraum (Abstellraum), ein Gäste-WC mit Dusche, einen Wohn- und Essbereich mit offenen Küche und einen praktischen Abstellraum unter der Stiege. Vom Wohnbereich gibt es einen fließenden Übergang zur sonnigen Terrasse und dem Garten. In das Obergeschoss gelangen Sie über eine Massivtreppe. Diese Ebene gliedert sich in drei Schlafzimmer, wovon zwei einen
eigenen direkten Zugang zur sonnigen Südwest ausgerichteten Terrasse haben und ein geräumiges Badezimmer mit Dusche und WC. Optional wäre auch eine Badewanne möglich. Ausstattung: - Dreifach verglaste Fenster - Elektrische Raffstore - Parkett | Fliesen - Fußbodenheizung - Bad / WC (Einrichtung) Achtung: Weitere Details der Ausstattung können gerne persönlich besprochen werden! Baustart noch nicht erfolgt. Da die Baubewilligung bereits vorliegt wäre eine Fertigstellung im Q4 heuer noch möglich. Wenn Sie wollen, dass ihr Kind in einer vertrauten und naturverbundenen Umgebung aufwächst, dann ist dieses Objekt genau das richtige für Sie! Stellen Sie sich vor, wie Sie am Wochenende das Essen zubereiten und nebenbei ihrem Kind beim Fußballspielen im Garten zuschauen können. Das Grundstück ist außerdem vollständige eingezäunt. Am Nachmittag schlendern Sie durch die kühlen Wälder oder springen in den nahe gelegenen Schwarzlsee. Habe ich Ihr Interesse geweckt? Dann zögern Sie nicht und holen sich am besten gleich die Infos per Mail oder Telefon ein - [Tel]. Ich freue mich auf Ihren Anruf, Dominic Nagele - Stolz, DAHEIM D.A. Immobilien GmbH Obige Angaben basieren auf Informationen der Eigentümer und sind ohne Gewähr. Irrtum und Änderung vorbehalten. Hinweis gemäß Energieausweisvorlagegesetz: Ein Energieausweis wurde vom Eigentümer bzw. Verkäufer, nach unserer Aufklärung über die generell geltende Vorlagepflicht, sowie Aufforderung zu seiner Erstellung noch nicht vorgelegt. Daher gilt zumindest eine dem Alter und der Art des Gebäudes entsprechende Gesamtenergieeffizienz als vereinbart. Wir übernehmen keinerlei Gewähr oder Haftung für die tatsächliche Energieeffizienz der angebotenen Immobilie. Lage: Das Gemeindegebiet Thalerhof gehört zur Gemeinde Kalsdorf. Diese Südwestlich ausgerichtete Immobilie befindet sich ca. 450 Meter Luftlinie vom Schwarzlsee entfernt. Die nächste Bushaltestelle ist ca. 350m entfernt.... [Mehr]