Beschreibung
Flächen- und Kostenübersicht Geschoss: EG Top: 2 Fläche: ca. 148,60 m² Nettomiete/m²: € 20.00 BK netto/m²: € 2,98 Allgemeine Objektübersicht Wo Architektur auf Lebensqualität trifft: Ihre neue Geschäftsadresse in der Donau City. Das Objekt: Ein Statement moderner Urbanität Mit den 2025 fertiggestellten DC-Flats hat die Wiener Skyline einen neuen, souveränen Schlusspunkt erhalten. Das Wohnhochhaus besticht durch seine elegante, sich stetig wandelnde Erscheinung und fügt sich perfekt in das pulsierende "Global Village" der Donau City ein. Hier verbindet sich internationales Flair mit nachhaltiger Weitsicht: Begrünte Dächer und moderne Photovoltaikanlagen treffen auf ein High-End-Raumklima. In diesem architektonischen Highlight gelangt nun eine repräsentative Bürofläche zur Erstvermietung - ideal für Visionäre, die einen Standort mit Charakter suchen. Die Highlights der Fläche Dieses großzügige Büro im Erdgeschoss besticht durch ein durchdachtes Layout, das Konzentration und Kollaboration
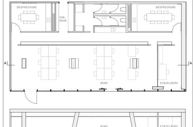
perfekt vereint. Dank der bodentiefen Fenster ist die gesamte Fläche von natürlichem Licht durchflutet. Das Raumkonzept: Open-Space-Area: Eine großzügige Fläche für flexibles Teamwork und moderne Workplace-Konzepte. Einzelbüro: Ideal als Management-Office oder für vertrauliche Telefonate. 2 Besprechungszimmer: Repräsentative Räume für Kundentermine, Board-Meetings oder Brainstormings. Zentraler Sanitärbereich: Hochwertig ausgestattete Sanitäreinheit (vom Vermieter gestellt). Teeküche: Vorbereiteter Bereich für Ihre interne Coffee-Bar. Ausstattung & Komfort Nachhaltigkeit und modernste Technik gehen hier Hand in Hand. Das Gebäude setzt Maßstäbe in Sachen Energieeffizienz und Arbeitskomfort: Perfektes Klima: Die innovative Deckenkühlung sorgt auch an heißen Sommertagen für einen kühlen Kopf, während die effiziente Fernwärme im Winter für behagliche Wärme garantiert. Vermieter-Service: Der Hauseigentümer übernimmt für Sie die Grundausstattung - die Sanitäreinheiten sowie ein hochwertiger Bodenbelag sind bereits im Paket enthalten. Gestaltungsfreiheit: Gestalten Sie Ihr Business-Interieur nach Ihren Vorstellungen. Allfällige Zwischenwände, Beleuchtungskonzepte, die Teeküche sowie die IT-Verkabelung (CAT) werden mieterseitig realisiert - so wird die Fläche zu Ihrem Unikat. Barrierefreiheit & Parken: Das gesamte Objekt ist barrierefrei zugänglich. Für Sie und Ihre Kunden stehen zudem Stellplätze in den drei hauseigenen Parkgeschossen zur Verfügung. Nutzen Sie die Chance, Teil eines der modernsten Quartiere Wiens zu werden. Ob als exklusives Büro, Boutique oder Atelier - in den DC-Flats ist Ihr Erfolg zu Hause. Keine Mietverträge mit unecht steuerbefreiten Interessenten! Befristung: 10 Jahre Kündigungsverzicht: 3 Jahre Kaution: 6 BMM Provision: 3 BMM Bezug: ab 1.3.2026 Energieausweis HWB: 19,12 kWh/m².a Lage Die Donau City (DC) ist Wiens modernstes Wahrzeichen - ein kosmopolitisches "Global Village, das Architektur auf Weltniveau mit höchster Lebensqualität verbindet. Mit den DC-Flats sichern Sie sich einen Standort in einem Viertel, das Dynamik und Exklusivität ausstrahlt. Internationales Business-Zentrum: In unmittelbarer Nachbarschaft zur UNO-City und dem Austria Center Vienna profitieren Sie von einer kaufkräftigen, internationalen Zielgruppe aus Expats, Diplomaten und Business-Profis. Perfekte Symbiose aus Stadt & Natur: Nur wenige Schritte trennen Ihr Ladenlokal von der Donauinsel und dem Donaupark. Diese einzigartige Kombination aus moderner Skyline und weitläufigen Erholungsflächen sorgt für eine konstant hohe Frequenz und Aufenthaltsqualität. Infrastruktur der Extraklasse Öffentlich: Mit der U1 (Kaisermühlen/VIC) erreichen Sie das Stadtzentrum (Stephansplatz) in nur ca. 10 Minuten. PKW: Direkte Anbindung an die Donauuferautobahn (A22) sowie den Flughafen (ca. 20 Min.). Drei hauseigene Parkgeschosse garantieren maximalen Komfort. Belebtes Quartier: Durch die 302 Wohneinheiten direkt im Tower und die umliegenden Bürokomplexe ist eine lebendige Mischung aus Anrainern und Pendlern zu jeder Tageszeit garantiert. Öffentliche Erreichbarkeit U-Bahn: U1 Station Kaisermühlen/VIC (ca. 5-7 Gehminuten) U1 Station Donauinsel: Ebenfalls fußläufig erreichbar Bus: 20A, 92A,92B, N90 Vienna Airport Lines (VAL 3) Ansprechpartner: Frau Kathrin Fercher Tel.: [Tel] Mehr Objekte finden Sie unter: www.jpi.at Wir haben was für Sie Wir weisen darauf hin, dass wir mit dem Abgeber in ständiger Geschäftsbeziehung stehen und schon aus diesem Grund ein wirtschaftliches Naheverhältnis vorliegt.... [Mehr]