Beschreibung
Ihr neuer Firmenstandort im Wiener Umland. Durchdacht, modern und bereit für Ihr Wachstum. Im südlichen Wiener Umland entsteht mit P77 • FLEXHALLS ein kompakter, hochwertiger Gewerbestandort für Betriebe, die mehr erwarten. Sieben moderne, zweigeschossige Einheiten bieten die perfekte Kombination aus
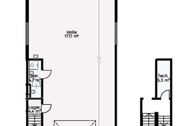
Halle, Büro, Technik- und Außenflächen. Ob Handwerk, Montage, Logistik, Service oder leichte Produktion, diese Flächen sind für Unternehmer konzipiert die Wert auf Qualität und Effizienz legen. Dank durchdachter Planung und einer qualitätvollen Ausstattung finden Sie hier den idealen Platz für Ihren nächsten Schritt. Die Fakten auf einen Blick 7 flexible Einheiten: Jede mit
Halle, Büro, Sanitär- & Technikfläche. Parken: Zwei fixe Stellplätze pro Einheit. Komfort: Komplett barrierefreier Zugang, inklusive Personenaufzug ins Obergeschoss. Extra-Fläche: Rund 44 m² Terrasse je Einheit. Vollausstattung: Teeküche, Büromöblierung und Netzwerkverkabelung inklusive. Sorgenfrei: Heizung & Warmwasser
werden durch die Wärmepumpe in Kombination mit einer Photovoltaikanlage am Dach günstiger . Zukunftssicher: modernste Bauweise und Materialien für eine nachhaltige Bewirtschaftung. Klimafit: Bodenheizung und Split-Klimageräte sorgen für eine produktive Temperierung. Effizient: Fokus auf niedrige Betriebskosten durch smarte Haustechnik. Lage & Anbindung Standort: 2486 Pottendorf Auto: Perfekte Anbindung an B60/B16; die A3 ist in ca. 6 km erreichbar. Öffentlich: Bahnhof Pottendorf-Landegg (ca. 2,5 km) mit Direktanbindung nach Wien. Distanz: ca. 35 Min. / 45 km bis Wien Zentrum. Ihre Vorteile mit P77 - FLEXHALLS 1. Maximale Flexibilität Ob Handwerksbetrieb, E-Commerce-Fulfillment oder technischer Service - die klaren Strukturen und die Kombination aus Halle und Büro passen sich Ihrem Bedarf an. 2. Kosten im Griff Durchdachte Haustechnik, hochwertige Dämmung und robuste Materialien sorgen für planbare und geringe laufende Kosten.... [Mehr]