Beschreibung
Der Trattmannspark besteht aus insgesamt sechs Baukörpern, wovon im zweiten Bauabschnitt die klimaaktiv zertifizierten Gebäude A & B sowie D & E errichtet werden. In diesen vier Häusern befinden sich insgesamt 60 wohl durchdachte
Mietwohnungen mit ca. 27 m² bis 98 m² Wohnnutzfläche. Jede der 1- bis 4-Zimmer-
Wohnungen bietet ein Maximum an Wohnvergnügen und Platz für jeden Lebensstil und jede Lebenssituation. Annehmlichkeiten wie ein gemeinschaftlicher Fitnessraum und Co-Working-Bereich sowie großzügig gestaltete Frei-, Spiel- und Erholungsflächen begeistern zudem weit über das Wohnen hinaus. DIE
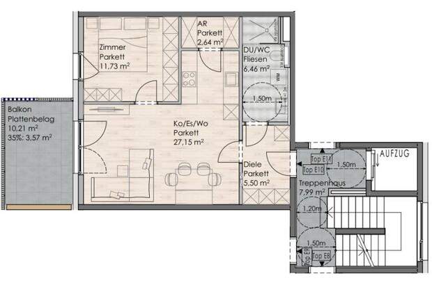
MIETE Miete Wohnung + 1x Tiefgaragenstellplatz monatlich brutto: EUR 792,76 Betriebskosten monatlich brutto (geschätzt): EUR 175,17 Bruttogesamtmietzins monatlich: EUR 967,93 * Die Kaution: 3 Bruttomonatsmieten (Bruttomiete + Bruttobetriebskosten) * Verfügbar ab sofort * Der Mietvertrag wird auf 5 Jahre befristet abgeschlossen * Es kann zusätzlich ein Freistellplatz um brutto EUR 48,00 dazu gemietet
werden. * Die Kosten für die Mietvertragserrichtung belaufen sich auf brutto EUR 375,00. ECKDATEN Wohnfläche: 53,48 m² Balkon: 10,21 m² Kellerabteil: 4,13 m² AUSSTATTUNG * Offen gestalteter Wohn-, Koch- und Essbereich mit hochwertiger Einbauküche. * Großzügiger Balkon mit West-Ausrichtung. * Alle Fenster und Fenstertüren werden mit elektronisch bedienbaren Raffstores ausgestattet. * Badezimmer mit Dusche, Waschbecken, WC sowie Waschmaschinenanschluss. * Der Wohnung sind ein Stellplatz in der Tiefgarage mit versperrbarer Steckdose sowie ein Kellerabteil zugehörig. * Allgemeinräumlichkeiten wie Fahrradraum, Fitnessraum, Co-Working-Raum und Wasch- und Trockenraum stehen zur Mitbenutzung zur Verfügung. KONTAKT & BESICHTIGUNG Für detaillierte Informationen oder eine Besichtigung der Wohnung steht Ihnen unser Team sehr gerne zur Verfügung: Christoph Ebli [Tel] Wir freuen uns auf Ihre Kontaktaufnahme! HINWEIS Sämtliche hier gemachten Angaben sind lediglich unverbindliche Vorinformationen, die nach bestem Wissen erfolgen, jedoch ohne Gewähr. I... [Mehr]