Beschreibung
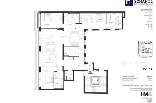
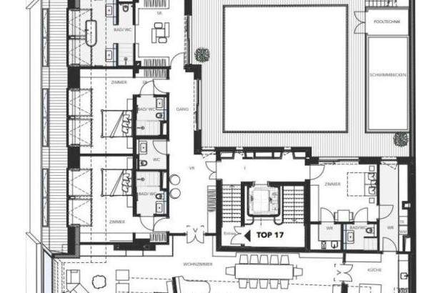
Die majestätischste Adresse Wiens ? Eine Residenz der Superlative mit 14 Zimmern, 9 Luxusbädern & 360° Blick über die Stadt Die Krone Wiens ? Eine Residenz der Superlative über den Dächern der Stadt Mitten im Herzen der Wiener Innenstadt, dort, wo Geschichte, Kultur und weltstädtischer Luxus in vollkommenem Einklang verschmelzen, erhebt sich eine Wohnikone, die ihresgleichen sucht. Diese prachtvolle Residenz ist mehr als nur ein Zuhause ? sie ist ein Statement. Eine Hommage an höchste Lebensqualität, an architektonische Meisterschaft und an die unvergleichliche Magie Wiens. Die Dimension des Außergewöhnlichen Auf einer beeindruckenden Wohnfläche, die sich über mehrere Ebenen erstreckt, offenbaren sich 14 prachtvolle Zimmer, jedes einzelne mit unverwechselbarem Charakter, maßgefertigten Designelementen und edelsten Materialien ? vom feinsten Naturstein über handverlesene Hölzer bis hin zu luxuriösen Textilien. Neun exklusive Luxusbäder bieten privaten Spa-Komfort auf höchstem Niveau ? ausgestattet
mit Dampfduschen, freistehenden Designer-Badewannen und exklusiven Armaturen internationaler Spitzenmarken. Fünf separate WCs unterstreichen den kompromisslosen Anspruch an Komfort und Privatsphäre. Eine Dachterrasse, die Geschichte schreibt Das absolute Herzstück dieser Residenz bildet die rund 300 m² große Dachterrasse ? ein architektonisches Meisterwerk mit 360° Panoramablick über ganz Wien. Von hier aus schweift der Blick über die ikonischen Wahrzeichen der Stadt ? vom Stephansdom bis hin zu den Ausläufern des Wienerwaldes. Ob für exklusive Empfänge, private Dinners unter dem Sternenhimmel oder stille Momente über den Dächern der Weltstadt ? diese Terrasse verkörpert pure Freiheit, Eleganz und Weltklasse. Architektur & Ausstattung ? Luxus in Vollendung 14 großzügige Zimmer mit individuellen Gestaltungsmöglichkeiten die 3 Tops 15,16 & das PH Top 17 können zusammengelegt werden, somit befindet sich die gesamte Wohnung auf 2 Etagen 9 Luxusbäder mit hochwertigsten Materialien und Ausstattung... [Mehr]