Beschreibung
2-Zimmer-
Wohnung im Dachgeschoss! Diese gemütliche 2-Zimmer-
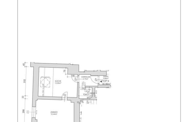
Wohnung mit einer Nutzfläche von 31 m² bietet ein großzügiges Schlafzimmer, einen Wohn-Essbereich und einen praktischen Vorraum. Das Badezimmer ist mit Dusche, Handwaschbecken und WC ausgestattet. Eckdaten: Wohnfläche: ca. 31,7 m² Zimmer: 2 (großzügiges Schlafzimmer, Wohn-Essbereich) Badezimmer: mit Dusche und WC Kellerabteil Mietvertrag: befristet vermietet bis 30/09/2028 Kaufpreis: € 99.000, Honorar: 3% vom Kaufpreis zuzüglich 20% USt. Eine wertbeständige Immobilie in bester Grazer Lage - auch ideal für Anleger, die ein rundum sorgloses Investment suchen. Sie sind überzeugt? Vereinbaren Sie noch heute einen unverbindlichen Besichtigungstermin mit Frau Cara Mihelic unter [Tel]. Hinweis auf familiäres oder wirtschaftliches Naheverhältnis gemäß § 30b KSchG und § 6 Abs. 4 Makler G: Wir möchten erwähnen, dass ein solches Naheverhältnis geeignet sein kann, die Interessen des Auftraggebers zu beeinträchtigen. Der Hinweis erfolgt daher
ausdrücklich und rechtzeitig im Sinne der gesetzlichen Offenlegungspflicht. Lage: Die Immobilie befindet sich in einem zentralen und lebendigen Stadtteil von Graz und zugleich in einer ruhigen Wohngegend im Bezirk St.Leonhard. Die Umgebung zeichnet sich durch eine hervorragende Infrastruktur aus, mit zahlreichen Einkaufsmöglichkeiten, Restaurants und Cafés in unmittelbarer Nähe. Die Anbindung an den öffentlichen Nahverkehr ist ausgezeichnet, sodass das Stadtzentrum und andere Ziele der Stadt schnell und bequem erreichbar sind. Zudem befinden sich Bildungseinrichtungen und Grünflächen in der Umgebung, die zur hohen Lebensqualität des Viertels beitragen.... [Mehr]