Beschreibung
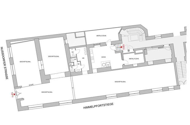
In die Vermietung gelangt eine ca. 293 m² große Geschäftsfläche in äußerst gefragter Lage im 9. Bezirk (Alsergrund) - Nußdorfer Straße Ecke Himmelpfortstiege. Das
Geschäftslokal befindet sich im Erdgeschoss eines gepflegten Altbaus (Baujahr 1912) und überzeugt durch eine großzügige, optimal nutzbare Auslagefläche sowie eine sehr gute straßenseitige Sichtbarkeit. Dank der stark frequentierten Nußdorfer Straße ist eine laufende Kundenfrequenz vor dem Objekt gegeben. Die nahegelegene Straßenbahnhaltestelle der Linien 37 und 38 unterstreicht die hervorragende Erreichbarkeit und erhöht zusätzlich die Passantenlage. Die Fläche eignet sich ideal als Verkaufslokal und bietet aufgrund des gut wahrnehmbaren Straßenzugangs beste Voraussetzungen für eine repräsentative Präsentation Ihres Unternehmens. Beheizt wird das Objekt mittels Gasetagenheizung. Verfügbar ab 01.06.2026. Die Verkehrsanbindung ist ausgezeichnet: U6 Währinger Straße, U6 Nußdorfer Straße sowie Straßenbahnlinien 37 und 38 befinden
sich in unmittelbarer Umgebung. Hinweis gemäß Energieausweisvorlagegesetz: Ein Energieausweis wurde vom Eigentümer bzw. Verkäufer, nach unserer Aufklärung über die ab 1.12.2012 geltende generelle Vorlagepflicht, sowie Aufforderung zu seiner Erstellung noch nicht vorgelegt. Daher gilt zumindest eine dem Alter und der Art des Gebäudes entsprechende Gesamtenergieeffizienz als vereinbart. Wir übernehmen keinerlei Gewähr oder Haftung für die tatsächliche Energieeffizienz der angebotenen Immobilie. Wir weisen darauf hin, dass zwischen dem Vermittler und dem Auftraggeber ein wirtschaftliches Naheverhältnis besteht. Der Vermittler ist als Doppelmakler tätig.... [Mehr]