Beschreibung
Im angegebenen Mietzins für die Top 22 von € 788,17 brutto sind sämtliche Betriebs- und Heizkosten sowie ein eigener Tiefgaragenplatz enthalten. Stromkosten extra Kaution: € 3000, In der Anton Bruckner Straße 9-11 wird derzeit ein Neubau mit wunderschönen, barrierefreien
Wohnungen errichtet. Beste, innere Neustadtlage in unmittelbarer Nähe zum Klinikum Wels und dem Welser Bahnhof, sämtliche Einkaufsmöglichkeiten sind fußläufig gut erreichbar. Es werden Eichen-Parkettböden verlegt, Fußbodenheizung durch Fernwärme ( jeder Wohnraum ist einzeln regelbar ), Vorraum und Badezimmer mit schönen Fliesen. Moderne Marken - Einbauküchen inklusive Geräte ( ablösefrei ), Außenrollläden, Bäder mit großer Dusche und Waschmaschinenanschluss. Bau- und Ausstattungsbeschreibung befindet sich im Anhang! Jeder
Wohnung ist ein eigenes Kellerabteil zugeteilt, Freiflächen wie z.B. Fahrradabstellplatz und Müllraum sind zur Allgemeinnutzung vorhanden. Verfügbar zur
Miete ( Mietbeginn Mai 2026 ) sind Zweizimmerwohnungen
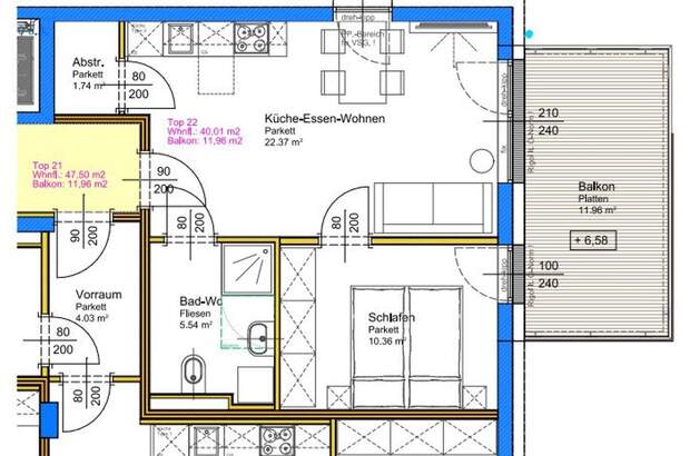
und eine Dreizimmerwohnung, Grundrisse im Anhang. Wohnflächen der Zweizimmerwohnungen zwischen ca. 40m² und ca. 56m². Alle Wohnungen verfügen über große Balkone, 2 der Zweizimmerwohnungen im Erdgeschoss ebenfalls über Terrasse und Garten. Die Mietpreise belaufen sich ab € 788,17 brutto ( ab Wfl. ca. 40m² + Balkon ) bis € 1266,23 brutto ( Wfl. ca. 77m² + Terrasse + Garten ). In den angegebenen Preisen sind sämtliche Betriebs- und Heizkosten sowie ein eigener Tiefgaragenplatz enthalten ( Vermietung ausschließlich inklusive TG-Platz ). Preise der einzelnen Wohnungen auf Anfrage Stromkosten extra! Kautionen: € 3000, / € 3500, / € 4000, / Gebühr f. Mietvertragserrichtung € 180, brutto ( einmalige Zahlung ) Der Immobilienmakler erklärt, dass er - entgegen dem in der Immobilienwirtschaft üblichen Geschäftsgebrauch des Doppelmaklers - einseitig nur für den Vermieter tätig ist.... [Mehr]