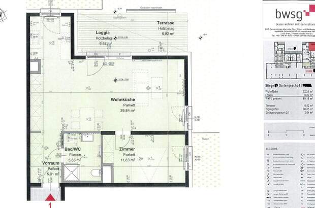
Moderne 2‑Zimmer‑Gartenwohnung mit großer Terrasse in Ruhelage am Schlimpweg 3 zu vermieten.

1210 Wien / 62m² / 2 Zimmer

#Erdgeschoss #Balkon #Garten #Terrasse #ruhig

Beschreibung

Diese moderne 2‑Zimmer‑Erdgeschosswohnung liegt in einer 2019 fertiggestellten Wohnhausanlage der BWSG und verbindet hochwertige Ausstattung mit großzügigen Freiflächen in absoluter Ruhelage. Die rund 39,8 m² große Wohnküche mit Parkettboden bildet das Herzstück der Wohnung und bietet direkten Zugang zur Terrasse (12m²) und dem ca. 90 m² großen Eigengarten. Das Schlafzimmer ist zum Garten orientiert und sorgt durch seine Ausrichtung sowie die Lage im Hofbereich für ein angenehmes Wohnklima. Dank Erdgeschosslage, Garten und guter öffentlicher Anbindung eignet sich die Wohnung ideal für Singles, Paare und Homeoffice‑Nutzer.