NEU! ++ 2 PKW-Garagenplätze ++ Neubau ++ 1130 Wien ++ Komfortable Zufahrt von der Straße ++

1130 Wien

Beschreibung

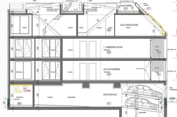
Zum Verkauf gelangen 2 PKW-Garagenplätze in einem Neubau (BJ 2015) in 1130 Wien . Die Garagenplätze Nr. 2 und Nr. 6 befinden sich im Erdgeschoss eines Neubauhauses in der Hofwiesengasse , sind Stapelparkplätze und verfügen über eine komfortable Zufahrt von der Straße (siehe Fotos) . Der Kaufpreis beträgt EUR 25.000 pro Stellplatz (Eigentum, lastenfrei). Wir weisen darauf hin, dass zwischen dem Vermittler und dem zu vermittelnden Dritten ein familiäres oder wirtschaftliches Naheverhältnis besteht. Der Vermittler ist als Doppelmakler tätig.