Beschreibung
Sie sind auf der Suche nach einer attraktiven Geschäftsfläche für Ihr Unternehmen? Wir freuen uns, ein interessantes Objekt zur Miete anbieten zu können. Im traditionsreichen und zugleich dynamischen Stadtteil Leoben-Göß bietet sich eine seltene Gelegenheit, eine hochwertige, ebenerdige ca. 205,66 m² Geschäftsfläche in nachhaltiger Lage zu nutzen. Die Steigtalstraße 2 verbindet Zentrumsnähe, gewachsene Wohnstrukturen und eine starke wirtschaftliche sowie akademische Umgebung - ein Standort mit langfristiger Stabilität und Entwicklungspotenzial. Die Nähe zum Zentrum Leobens, zur Montanuniversität, zu FH, HTL, Polytechnikum sowie zu Kinderbetreuungseinrichtungen unterstreicht die Attraktivität insbesondere für Praxis-, Therapie- und Bildungsnutzungen. Ergänzt wird dies durch die hohe Lebensqualität der Stadt mit historischer Altstadt, verkehrsfreiem Hauptplatz, Kulturangeboten. Wirtschaftliches Umfeld Die unmittelbare Nachbarschaft zu Mayr-Melnhof, der Gösser Brauerei, RHI Magnesita sowie
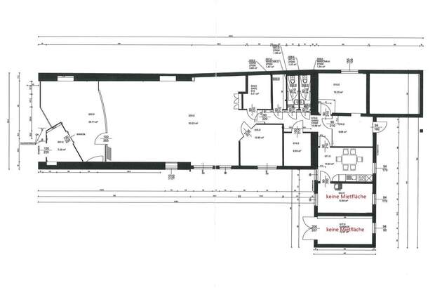
zum Stift Göss schafft ein solides wirtschaftliches Fundament und eine konstante Frequenz - ein wesentlicher Faktor für langfristige Werthaltigkeit und Nutzungssicherheit. Das Objekt - Qualität & Flexibilität Zur Vermietung gelangt ein ebenerdiges GESCHÄFTSLOKAL, welches als Bankfiliale und in weiterer Folge als Büro- und Schulungszentrum genutzt wurde. Dieses bietet ab April 2026 eine hochwertige Basis für Praxis-, Büro- Geschäfts- oder Dienstleistungskonzepte. Bereits beim Betreten überzeugt das Objekt durch ein repräsentatives, einladendes Foyer sowie einen hellen, freundlichen Eingangsbereich. Die gesamte Mietfläche befindet sich in sehr gutem, gepflegtem Zustand und ist mit Küchenbereich sowie Sanitäranlagen ausgestattet - ein klarer Vorteil für eine rasche Inbetriebnahme. Die strukturierte Raumaufteilung (Skizze weicht teilweise von derzeitiger Aufteilung ab) ermöglicht sowohl eine sofortige Nutzung mit minimalem Adaptierungsaufwand als auch eine maßgeschneiderte Umgestaltung für anspruchsvolle Konzepte, insbesondere im medizinischen, therapeutischen oder beratenden Bereich. Liegenschaft & Umfeld Das Geschäftslokal ist Teil einer gepflegten, gemischt genutzten Liegenschaft mit mehreren Wohnungen sowie einem beliebten, etablierten Restaurant. Stellplätze (nach Absprache) direkt bei der Liegenschaft sowie Mitnutzung der Grünfläche im südlichen Bereich runden das hochwertige Gesamtbild ab und bieten zusätzlichen Komfort für Nutzer: innen, Mitarbeiter: innen und Klient: innen. Eignung & Perspektive Diese Immobilie eignet sich in besonderem Maß für: Ärztliche oder therapeutische Praxen Gesundheits-, Beratungs- oder Diagnostikzentren Kanzleien, Büros oder hochwertige Dienstleister Investoren mit Fokus auf nachhaltige, langfristige Nutzung Konditionen € 3.037,15 Miete (inkl. MwSt.) € 450,- Heizungsakonto/Fernwärme (inkl. MwSt.) € 10.000,- Kaution Fazit Diese Geschäftsfläche vereint Lagequalität, Substanz und Flexibilität in einer Form, die am Markt selten geworden ist. Eine exklusive Gelegenheit für Investoren und Praxisnutzer, die Wert auf Stabilität, Repräsentation und Entwicklungspotenzial legen - in einem der stärksten Bildungs- und Wirtschaftsstandorte der Obersteiermark Gerne übermitteln wir Ihnen das detaillierte Exposé mit allen relevanten Informationen zur Geschäftsfläche. Bei Interesse oder für weitere Auskünfte stehen wir Ihnen jederzeit zur Verfügung HINWEIS: Bei den Grundrissskizzen handelt es sich um schematische Darstellungen - Maße nicht verbindlich Kontakt: Marion Handler Tel.: [Tel] Mail: [Email] Haftungsausschluss Dieses Exposé dient ausschließlich der unverbindlichen Vorabinformation und stellt kein rechtlich bindendes Angebot dar. Sämtliche Angaben, Darstellungen, Maß- und Flächenangaben erfolgen ohne Gewähr und basieren auf den uns vorliegenden Informationen des Eigentümers, der Baubehörde, der Verwaltung oder sonstiger Dritter. Die enthaltenen Grundrisse und Pläne sind schematische Darstellungen, nicht maßstabsgetreu und können von den Originalplänen sowie von der tatsächlichen Ausführung abweichen. Maßangaben, Flächen, Ausstattungsmerkmale und Zahlenangaben können gerundet oder geschätzt sein. Für Abweichungen, Irrtümer, Änderungen sowie für die Richtigkeit und Vollständigkeit der Angaben wird keine Haftung übernommen. Maßgeblich sind ausschließlich die Inhalte des notariellen Kauf- bzw. Mietvertrages. Das Anbot ist freibleibend und unverbindlich, Irrtümer und Änderungen bleiben vorbehalten. Alle Kauf- und Mietpreise verstehen sich exklusive Nebenkosten und Maklerhonorar. Es wird ausdrücklich darauf hingewiesen, dass sich der Interessent vor Abschluss eines Rechtsgeschäftes durch eigene Wahrnehmung, insbesondere durch Besichtigung des Objektes, von dessen Zustand und Gegebenheiten zu überzeugen hat. Auf ein allfälliges wirtschaftliches oder persönliches Naheverhältnis wird hingewiesen. Die Firma Immobilien Christian Rossik ist gemäß § 5 Abs. 3 Maklergesetz (Makler G) als Doppelmakler tätig. Hinweis gemäß Energieausweisvorlagegesetz: Ein Energieausweis wurde vom Eigentümer bzw. Verkäufer, nach unserer Aufklärung über die generell geltende Vorlagepflicht, sowie Aufforderung zu seiner Erstellung noch nicht vorgelegt. Daher gilt zumindest eine dem Alter und der Art des Gebäudes entsprechende Gesamtenergieeffizienz als vereinbart. Wir übernehmen keinerlei Gewähr oder Haftung für die tatsächliche Energieeffizienz der angebotenen Immobilie. Der Vermittler ist als Doppelmakler tätig.... [Mehr]