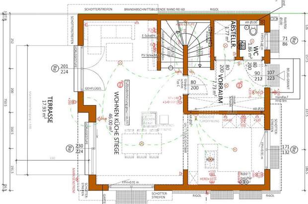
Beschreibung
In einer ruhigen, familienfreundlichen Wohngegend im 21. Bezirk entsteht dieses hochwertig geplante Einfamilienhaus. Das Grundstück umfasst 244 m² und bietet einen großzügigen Garten mit Terrasse - ideal zum Entspannen, Spielen und Genießen. Die Kombination aus moderner Architektur, klaren Linien und einer ruhigen Lage macht dieses Zuhause besonders attraktiv für Familien und alle, die naturnah leben möchten. Wohnfläche & Raumkonzept Die Nettogrundfläche von 117 m² verteilt sich auf vier gut geschnittene Zimmer, die viel Platz für individuelle Wohnwünsche bieten. Dank einer durchdachten Raumaufteilung entsteht ein offenes, lichtdurchflutetes Wohnambiente. Hochwertige Materialien und eine funktionale Architektur sorgen für ein angenehmes Wohngefühl. Zusätzlichen Raum bietet der Keller, der vielfältige Nutzungsmöglichkeiten eröffnet - ob als Fitnessraum, Hobbybereich, Atelier oder ruhiges Homeoffice. Ausstattung & Technik Das Doppelhaus überzeugt durch moderne und nachhaltige Haustechnik:
Effiziente Wärmepumpe für umweltfreundliches Heizen Installierte Photovoltaikanlage Hochwertige Fenster und Dämmung Terrasse und Garten bereits angelegt Außenanlagen, Zäune und PKW Abstellplatz im Kaufpreis inkludiert Die gesamte Planung wurde bis ins Detail durchdacht, um ein energieeffizientes, komfortables und zukunftssicheres Wohnen zu garantieren. Wir weisen darauf hin, dass zwischen dem Vermittler und dem zu vermittelnden Dritten ein familiäres oder wirtschaftliches Naheverhältnis besteht. Der Vermittler ist als Doppelmakler tätig. Infrastruktur / Entfernungen Gesundheit Arzt <1.000m Apotheke <1.500m Klinik <1.500m Krankenhaus <2.000m Kinder & Schulen Schule <500m Kindergarten <1.000m Universität <1.500m Höhere Schule <1.500m Nahversorgung Supermarkt <1.000m Bäckerei <1.500m Einkaufszentrum <1.500m Sonstige Geldautomat <1.500m Bank <1.500m Post <1.000m Polizei <2.000m Verkehr Bus <500m U-Bahn <500m Straßenbahn <1.000m Bahnhof <500m Autobahnanschluss <500m Angaben Entfernung Luftlinie / Quelle: Open Street Map Lage: Die Liegenschaft in der Joseph-Melichar-Gasse überzeugt durch ihre ausgezeichnete Verkehrsanbindung sowie die unmittelbare Nähe zur Neuen Donau. Öffentliche Verkehrsmittel wie die U6 sind in wenigen Gehminuten erreichbar und ermöglichen eine schnelle Verbindung in die Wiener Innenstadt. Gleichzeitig bietet die Lage hohen Freizeitwert durch Spazier-, Rad- und Erholungsmöglichkeiten entlang der Neuen Donau, die in nur 5 Minuten bequem zu Fuß erreichbar sind. Einkaufsmöglichkeiten, Schulen und Nahversorgung befinden sich in komfortabler Reichweite und machen diesen Standort besonders attraktiv für Familien.... [Mehr]