Beschreibung
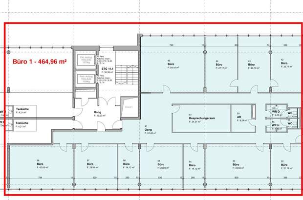
In die Vermietung gelangt eine ca. 465 m² große Bürofläche im 4. Obergeschoß des modernen Bürogebäudes 2nd CENTRAL , das im Jahr 2013 fertiggestellt wurde. Das Objekt verfügt über eine zweigeschoßige Tiefgarage, ein Erdgeschoß, sechs Obergeschoße sowie ein Dachgeschoß. Aktuell stehen im 4. Obergeschoß zwei attraktive Büroeinheiten zur Verfügung. Die Flächen sind hochwertig ausgebaut, die Trennwände zum Gang sind großteils aus Glas. Die Raumkühlung erfolgt über eine Kühldecke, die Heizung über Radiatoren, die Büroräume verfügen über eine mechanische Be- und Entlüftung, die Fenster sind öffenbar. Die Raumaufteilung kann grundsätzlich an mieterspezifische Bedürfnisse angepasst werden. Die Beleuchtung in den Büroräumen erfolgt über moderne Stehleuchten. Die Liegenschaft überzeugt durch ihre ausgezeichnete Verkehrsanbindung: Die U-Bahnstationen Praterstern und Vorgartenstraße der Linie U1 befinden sich in unmittelbarer Nähe und gewährleisten eine optimale Erreichbarkeit mit öffentlichen Verkehrsmitteln.
Auch für den Individualverkehr ist der Standort über den Praterstern bzw. die Reichsbrücke bestens angebunden. Im abgesperrten Hofbereich stehen überdachte Fahrradabstellplätze zur Verfügung. Im Erdgeschoß gibt es ein Behinderten WC. Eine Filiale der Supermarktkette Billa befindet sich direkt im Gebäude, ergänzt durch ein vielfältiges gastronomisches Angebot in der Umgebung, das eine hervorragende Infrastruktur sicherstellt. Darüber hinaus wurde das Objekt mit dem GOLD-Zertifikat der Österreichischen Gesellschaft für Nachhaltige Immobilienwirtschaft (ÖGNI ) ausgezeichnet. verfügbare Flächen/Konditionen: 4. OG: ca. 465 m² 4. OG: ca. 503 m² Nettomiete: € 15,50/m²/Monat Betriebskosten: netto € 3,44/m²/Monat Heizkosten: netto € 1,00/m²/Monat Auf Anfrage stehen im UG auch Lagerflächen von ca. 15 m² bis ca. 120 m² (netto € 7,50/m²/Monat zzgl. BK) zur Verfügung. In der hauseigenen Tiefgarage können je nach Verfügbarkeit PKW-Stellplätze zu netto € 150,-/Stück/Monat inkl. BK angemietet werden. Alle Preise zzgl. 20% USt. Ausstattung: Kühldecke Lift Doppelboden mechanische Be- und Entlüftung Beschattung gentrennte Sanitäreinheiten Beleuchtung überdachte Fahradabstellplätze hauseigene Tiefgarage Beleuchtung über Stehlampen Beschattung Öffentliche Verkehrsanbindung: U-Bahn: U1 und U2 Station Praterstern (5 min. bis zum Stephansplatz) S-Bahn: S1, S2, S3 und S7 direkte Verbindung zum Wiener Flughafen Bus: 5B, 80A und 85 A sowie Regionalbusse Straßenbahn: O und 5 Individualverkehr: Mit dem Pkw erreicht man die A22, A23 und die A4 in wenigen Minuten, und die bestens ausgebauten Radwege ergänzen den hervorragenden Anschluss an das individuelle Verkehrsnetz. Hinweis gemäß Energieausweisvorlagegesetz: Ein Energieausweis wurde vom Eigentümer bzw. Verkäufer, nach unserer Aufklärung über die generell geltende Vorlagepflicht, sowie Aufforderung zu seiner Erstellung noch nicht vorgelegt. Daher gilt zumindest eine dem Alter und der Art des Gebäudes entsprechende Gesamtenergieeffizienz als vereinbart. Wir übernehmen keinerlei Gewähr oder Haftung für die tatsächliche Energieeffizienz der angebotenen Immobilie. Wir weisen darauf hin, dass zwischen dem Vermittler und dem zu vermittelnden Dritten ein familiäres oder wirtschaftliches Naheverhältnis besteht. Infrastruktur / Entfernungen Gesundheit Arzt <500m Apotheke <500m Klinik <500m Krankenhaus <2.000m Kinder & Schulen Schule <500m Kindergarten <500m Universität <1.000m Höhere Schule <2.000m Nahversorgung Supermarkt <500m Bäckerei <500m Einkaufszentrum <2.500m Sonstige Geldautomat <500m Bank <500m Post <500m Polizei <1.000m Verkehr Bus <500m U-Bahn <500m Straßenbahn <500m Bahnhof <500m Autobahnanschluss <1.500m Angaben Entfernung Luftlinie / Quelle: Open Street Map... [Mehr]