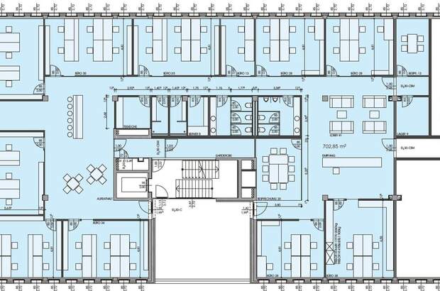
Geräumige & moderne Bürofläche im 3. Obergeschoß

6020 Innsbruck / 702m² / 13 Zimmer

#Büro #Parkmöglichkeit

Beschreibung

Die Kosten für die Felder "Gesamtbelastung netto, Miete netto und Ust. sind inklusive 5 Autoabstellplätzen in der Tiefgarage in der Höhe von netto EUR 88,- kalkuliert. Sonstige Kosten ergeben sich aus der einmaligen Rechtgeschäfts- sowie Vertragserrichtungsgebühr in der Höhe von EUR 10.208,93 bzw. EUR 350,-. Die Kaution ergibt sich aus drei Bruttomonatsmieten, wobei die 5 Parkplätze in der Höhe von EUR 88,- zuzüglich USt. inkludiert sind.