Beschreibung
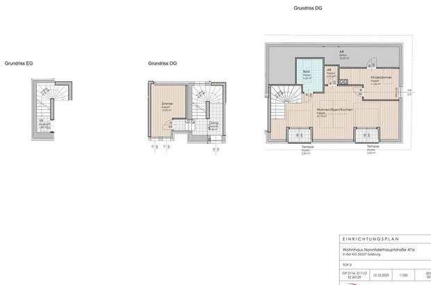
* Neubauprojekt mit nur 3 Wohneinheiten * Top 1: 167,00 qm Wohnfläche * Top 2: 118,09 qm Wohnfläche * Top 3: 84,85 qm Wohnfläche * 428 qm Gesamtgrundfläche * 97 qm Eigengarten (nur Top 1) * Balkone * ansprechende Ausstattung * Massivbauweise * Fußbodenheizung * effiziente Luft-Wärme-Pumpe * Photovoltaikanlage * je Wohneinheit ein Kellerraum * je Wohneinheit ein PKW-Stellplatz (Aufpreis: € 25.000,-) * hohe Energieeffizienz (HWB: 33, fGEE: 0,63) * Fertigstellung geplant für Juni 2027 Der Vermittler ist als Doppelmakler tätig. Lage: Das ansprechende Neubauprojekt befindet sich im beliebten Salzburger Stadtteil Nonntal, einer der gefragtesten Wohngegenden der Stadt. Die Lage überzeugt nicht zuletzt durch ihre unmittelbare Nähe zur Altstadt. Die
Wohnungen liegen in einem noch zu errichtenden Wohnhaus mit nur 3 Wohneinheiten und bieten eine urbanes Wohnatmosphäre. Die Immobilie eignet sich ideal sowohl als Eigenheim als auch als wertstabile Anlage. Nonntal zeichnet sich durch eine hohe Lebensqualität
aus. Zahlreiche Grünflächen, Spazier- und Erholungswege sowie die Nähe zu den Berchtesgardener Alpen bieten vielfältige Freizeitmöglichkeiten. Gleichzeitig sind die Salzburger Altstadt, kulturelle Einrichtungen, Cafés, Restaurants und Einkaufsmöglichkeiten fußläufig oder mit dem Fahrrad in wenigen Minuten erreichbar. Die ausgezeichnete Infrastruktur mit öffentlichen Verkehrsmitteln, Schulen, Universitätseinrichtungen, Ärzten und Nahversorgern macht den Stadtteil besonders attraktiv. Trotz der zentralen Lage ist das Wohnumfeld angenehm und von einem gehobenen, gewachsenen Wohncharakter geprägt. Die kaufgegenständlichen Wohnungen vereinen zentrales Wohnen und Wertbeständigkeit und stellen eine seltene Gelegenheit dar, in einer der besten Wohnlagen Salzburgs Eigentum zu erwerben.... [Mehr]