Beschreibung
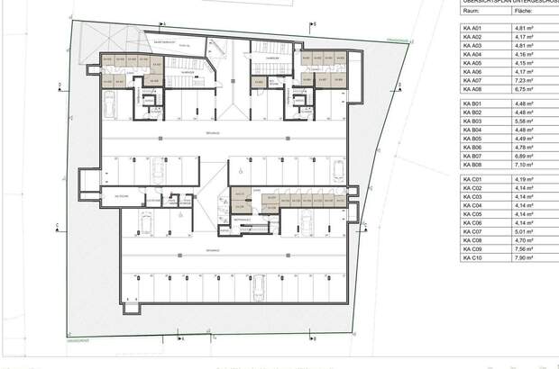
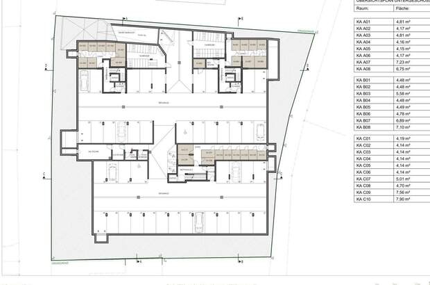
IN BAU DREIKLANG steht für durchdachtes Wohnen: helle Räume, hochwertige Ausstattung, bodenbündige Duschen, Raffstores, südseitige Terrassen - für ein Zuhause mit Komfort und Lebensqualität. Ein Platz zum Wohlfühlen - Highlights zum aktuellen Wohnbauprojekt: Baumkirchen ist ein ruhiges, ländlich geprägtes Dorf und liegt zwischen Hall und Wattens auf der Sonnenseite des Inntals. Auf einem ca. 2.700 m² großen Grundstück errichten wir ein funktionelles und durchdachtes Wohnbauprojekt mit drei unterirdisch, durch die Tiefgarage verbundenen Gebäuden. Es werden 26 barrierefreie 2-, 3- und 4-Zimmer
Wohnungen und 44 Garagenparkplätze entstehen. Alle Gärten, Terrassen und Balkone sind nach Südwesten - zur Sonne hin - ausgerichtet. Die Bauqualität und Ausstattung ist wie bei allen REALBAU Wohnbauprojekten energieeffizient, langlebig und hochwertig. Im Sommer gekühlt und im Winter geheizt wird mittels nachhaltiger Grundwasserwärmepumpe Der notwendige Strom wird so weit wie möglich über die hauseigene
PV-Anlage produziert. Für gutes Raumklima sorgt die Dreifachisolierverglasung der Fenster und Balkontüren und der inkludierte Sonnenschutz mittels elektrischen Raffstores. Die Fußböden werden mit Echtholzparkett oder keramischen Fliesen belegt. Auf den Balkonen verlegen wir geschmackvolles Feinsteinzeug und auf den Terrassen im Erdgeschoss hochwertige Betonplatten. Leben in der Natur, mit schnellem Zugang zur Stadt: Durch das gut ausgebaute Öffi-Netz und die Nähe zur Tiroler Bundesstraße sowie zur Autobahn, eignet sich Baumkirchen bestens als Wohnort für Pendler: innen. Notwendige Infrastruktur ist in den Nachbargemeinden gut vertreten und in wenigen Minuten erreichbar. Erholung, Sport und Freizeitaktivitäten liegen direkt vor der Haustür in den angrenzenden Wiesen, Feldern und Wäldern, am Inn, den naheliegenden Fuß- und Radwegen sowie den Sportstätten in den Nachbargemeinden. Die Kaufabwicklung ist provisionsfrei und erfolgt über den Ratenzahlungsplan, wie im Bauträgervertragsgesetz vorgesehen. Eigennutzer profitieren derzeit vom Wegfall der Grundbuchseintragungsgebühr von 1,1 %, bis zu einem Kaufpreis in der Höhe von Euro 500.000. Grundrissänderungen und Sonderwünsche sind, abhängig vom Baufortschritt, noch möglich. Der Baustart ist bereits erfolgt - die Bezugsfertigstellung ist im Sommer 2026, geplant. Bitte kontaktieren Sie uns für weitere Details oder ein persönliches Gespräch, Sie erreichen uns unter [Tel], bzw. unter [Email] . DREIKLANG steht für durchdachtes Wohnen: helle Räume, hochwertige Ausstattung, bodenbündige Duschen, Raffstores, südseitige Terrassen - für ein Zuhause mit Komfort und Lebensqualität. Die 3-Zimmer-Wohnung Top B07 im Dachgeschoss überzeugt mit durchdachter Raumaufteilung und großer südseitiger Terrasse: die Schlafzimmer orientieren sich nach Nordosten und nach Westen, so dass sie im Sommer nicht überhitzen, Bad und WC sind getrennt und können auf Wunsch umgestaltet werden, der großzügige lichtdurchflutete offene Wohnraum und die Küche samt Kochinsel und Abstellraum mit über 30 m² Fläche, sind zur Terrasse hin ausgerichtet, die Abendsonne mit viel Privatsphäre genießt man am besten auf der 33 m² teilüberdachten Terrasse, die im Sommer den Wohnraum verdoppelt. Beachten sie unsere nachhaltige und hochwertige Ausstattung und die Extras! zwei Garagenparkplätze sind für diese Wohnung reserviert, zum Kaufpreis von je Euro 28.800,00 Haben wir Ihr Interesse geweckt? Kontaktieren Sie uns für Fragen, Details oder weiterführende Unterlagen! Sie erreichen uns unter [Tel]-1605, bzw. unter [Email] .... [Mehr]