Luxuriöses Penthouse mit Bergblick in der Nähe von Innsbruck - Ihr Traum auf 146 m²!

6020 Innsbruck / 146m²

#Dachgeschoss #Balkon #Parkmöglichkeit #Terrasse #hell #ruhig

Beschreibung

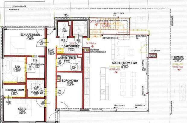
Willkommen in Ihrem neuen Penthouse in Innsbruck ! Diese traumhafte Wohnung besticht durch ihre optimale Ausrichtung, lichtdurchflutete Räume sowie eine riesige Terrasse mit unvergleichlicher Aussicht. Hier genießen Sie urbanes Leben inmitten der Natur! • Ganzjährige Sonnen- und Ruhelage • Traumhafte Aussicht ins Inntal und auf die Landeshauptstadt Innsbruck • Bestens durchdachte Grundrisse und große Terrassen • Beste exklusive Ausstattung vom Landhausdielen Boden in Eiche bis hin zur Deckenkühlung • Offene und helle Architektur mit großen Glasflächen und Schiebeelementen Der Immobilienmakler erklärt, dass er - entgegen dem in der Immobilienwirtschaft üblichen Geschäftsgebrauch des Doppelmaklers - einseitig nur für den Vermieter tätig ist. Lage: • Ganzjährige Sonnen- und Ruhelage • Traumhafte Aussicht ins Inntal und auf die Landeshauptstadt Innsbruck • Bestens durchdachte Grundrisse und große Terrassen • Beste exklusive Ausstattung vom Eiche Landhausdielen Boden bis zu Dreifachverglasung... [Mehr]