Beschreibung
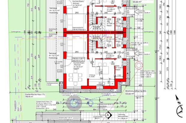
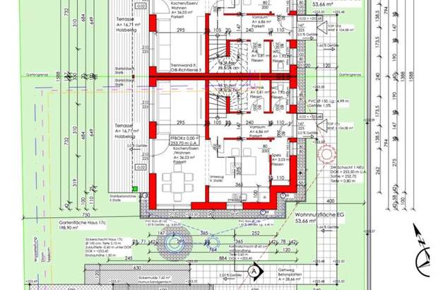
Dieses hochwertige, 2026 aus Baumeisterhand mit 38er Ziegel massiv gebaute Doppelhaus befindet sich in der Gemeinde Straß in Steiermark und hat eine Wohnfläche von ca. 104m2. Die Immobilie wird Belagsfertig angeboten und wird am Puls der Zeit (mit Fußbodenheizung, Nahwärme-Straß, Panoramafenster mit 3fach Verglasung und elektrischer Beschattung, Vorbereitung für Klima- und PV-Anlage, Glasfaseranschluss usw.) gebaut. Kann auf Wunsch auch Schlüsselfertig angeboten werden. Die Wohnfläche teilt sich im Erdgeschoss in einen Vorraum, einen Technikraum, einen Abstellraum, ein WC und einen geräumigen Koch- Ess- Wohnbereich mit Zugang auf die ca. 17m2 große Westterrasse und den ca. 200m2 großen Gartenanteil auf. Im Obergeschoss gibt es 3 Schlafzimmer und ein Badezimmer inkl. WC. Die angenehme Raumhöhe und die lichtdurchfluteten Räume bu? rgen fu? r ein kompaktes und angenehmes Wohnklima. Ein Carport und ein freier KFZ-Abstellplatz runden dieses Angebot ab. Für genaue Information stehen wir Ihnen
nach einer schriftlichen Anfrage mit Ihren persönlichen Daten gerne zur Verfügung. Wir weisen darauf hin, dass zwischen dem Vermittler und dem zu vermittelnden Dritten ein familiäres oder wirtschaftliches Naheverhältnis besteht. Der Vermittler ist als Doppelmakler tätig.... [Mehr]