Beschreibung
Sie sind auf der Suche nach einem bewilligtem Projekt für ihr Einfamilienhaus? Dann sind Sie hier genau richtig. Zum Verkauf gelangt ein ca. 999m² großes
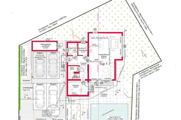
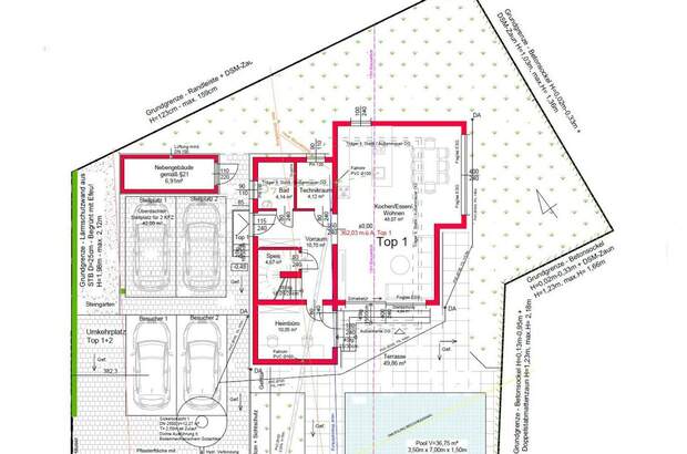
Grundstück, wovon ihnen die Hälfte gehört. Ein Nutwertgutachten aufgrund der Einreichplanung wurde bereits erstellt! Das Projekt sieht auf dem Gesamtgrundstück zwei Einfamilienhäuser vor, wobei das zweite Einfamilienhaus bereits vergeben ist. Hard Facts: - ca. 499.5m² Grundstücksgröße - Genehmigtes Projekt Einfamilienhaus (138m²) - Ebenes
Grundstück - Anschlüsse an der Grundstücksgrenze ... Habe ich Ihr Interesse geweckt? Dann zögern Sie nicht und holen sich am besten gleich die Infos per Mail oder Telefon ein - [Tel]. Ich freue mich auf Ihren Anruf, Dominic Nagele - Stolz, DAHEIM D.A. Immobilien GmbH Aufgepasst: Wenn Sie Ihre eigene Immobilie verkaufen oder einfach nur den aktuellen Marktwert erfahren möchten, bieten wir Ihnen gerne eine kostenlose & unverbindliche online Bewertung an. So wissen Sie genau, wo Sie stehen - transparent,
professionell und persönlich. Einfach unsere Homepage besuchen und unter dem Reiter Bewertung ihre Angaben vervollständigen. Hinweis gemäß Energieausweisvorlagegesetz: Ein Energieausweis wurde vom Eigentümer bzw. Verkäufer, nach unserer Aufklärung über die generell geltende Vorlagepflicht, sowie Aufforderung zu seiner Erstellung noch nicht vorgelegt. Daher gilt zumindest eine dem Alter und der Art des Gebäudes entsprechende Gesamtenergieeffizienz als vereinbart. Wir übernehmen keinerlei Gewähr oder Haftung für die tatsächliche Energieeffizienz der angebotenen Immobilie. Lage: Lieboch ist eine Marktgemeinde mit 5504 Einwohnern in der Weststeiermark, 16 Kilometer südwestlich von Graz im Bezirk Graz-Umgebung. Das Gemeindegebiet umfasst die Ortschaften Lieboch, Schadendorf und Spatenfhof. Sämtliche Einkaufsmöglichkeiten finden sich fußläufig erreichbar. Aufgrund der Nähe zur Radlerstraße wird eine Schallschutzmauer errichtet!... [Mehr]