LANGENROHR III/1, "Betreutes Wohnen (BV)" - geförderte Mietwohnung, 2. OG Top 1.16, 1000/00011991/00001116

3442 Langenrohr / 56m² / 2 Zimmer

#Balkon #Garten #Parkmöglichkeit #Terrasse #barrierefrei #gefördert #ruhig

Beschreibung

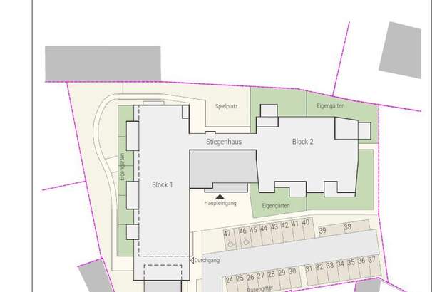
LANGENROHR, GENERATIONENÜBERGREIFENDES WOHNEN IM TULLNERFELD. Diese Wohnanlage mit 29 geförderten Wohnungen zeichnet sich durch seinen Wohnungsmix aus. 17 Wohnungen sind für "Begleitetes Wohnen" ausgerichtet, 12 Wohnungen werden zur Miete vergeben. Wohnungsgrößen von ca. 55 bis 87 m² und durchdachte 2- bis 3-Zimmer-Grundrissen inkl. einen privaten Balkon, Terrasse oder Eigengarten bieten einen hohen Wohnkomfort in ruhiger Grünanlage. Barrierefreie Ausführung, Lift, Einlagerungsräume sowie 1-2 PKW-Stellplätze pro Wohnung sorgen für Alltagstauglichkeit und Komfort. Gemeinschaftsraum, Spielplatz und das Angebot des "Begleiteten Wohnens" unterstützen ein generationenübergreifendes Miteinander. Dank der zentralen Lage im Ort sowie sehr guten Anbindung nach Tulln und Wien ist die Anlage ideal für alle, die naturnah wohnen und dennoch flexibel bleiben möchten. Angaben Gesamtmiete excl. Heizkosten, inkl. Betriebskosten-Akonto, inkl. PWK-Stellplatz. Alle Wohnungsangebote finden Sie auf unserer Homepage:... [Mehr]