Beschreibung
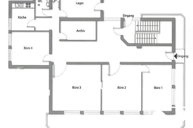
Moderne Büroflächen am südlichen Stadtrand - ca. 195 m² Nutzfläche Sie suchen einen gut erreichbaren Bürostandort? Diese ca. 195 m² große Fläche am südlichen Stadtrand bietet ideale Bedingungen für ein produktives Arbeitsumfeld. Ausstattung: 4 separate Büros Empfangsbereich Küche 2 WC´s zusätzliche
Lager- und Archivräume Highlights: Barrierefreie Erdgeschosslage Zwei Eingänge (Haupteingang & überdachter Zugang) Zahlreiche Parkplätze + E-Ladestation Klimaanlage Bushaltestelle direkt vor dem Gebäude Komfort, Funktionalität und optimale Anbindung - perfekt für Unternehmen, die einen modernen Standort mit bester Infrastruktur suchen. Kontaktieren Sie uns für weitere Informationen oder eine Besichtigung! Wir verweisen auf ein wirtschaftliches Naheverhältnis. Lage: Nur wenige Kilometer vom Salzburger Stadtzentrum entfernt und optimal an den öffentlichen Nahverkehr sowie das Straßennetz angebunden, bietet Fürstenbrunn eine attraktive Alternative zu innerstädtischen Bürostandorten. Die verkehrsgünstige
Lage mit Bushaltestelle vor Ort und die Nähe zur Autobahn sorgen für eine bequeme Anreise für Mitarbeiter und Kunden. Neben der hervorragenden Infrastruktur mit Schulen, Kinderbetreuungseinrichtungen, Nahversorgern und geplanten neuen Ortsentwicklungsprojekten punktet Fürstenbrunn mit einem hohen Freizeit- und Erholungswert. Die naturnahe Umgebung und das ruhige Arbeitsumfeld steigern die Mitarbeiterzufriedenheit und fördern eine produktive Arbeitsatmosphäre. Durch die günstigeren Miet- und Grundstückspreise im Vergleich zur Innenstadt ist Fürstenbrunn ein zukunftssicherer Bürostandort mit hoher Qualität.... [Mehr]