Beschreibung
Diese sanierungsbedürftige
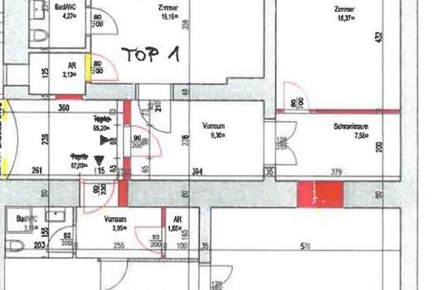
Wohnung in der Merangasse 42 bietet auf rund 67,88 m² eine gut strukturierte Raumaufteilung. Sie besteht aus zwei Zimmern, Vorraum, Abstellraum sowie Badezimmer. Die
Wohnung bietet eine solide Basis für individuelle Gestaltung und Modernisierung. Dank der guten Aufteilung eignet sie sich ideal für Personen, die ihre eigenen Wohnideen umsetzen möchten oder ein Objekt mit Entwicklungspotenzial suchen. Zusätzlich wird auch die
Wohnung Top 1 verkauft. Derzeit besteht noch keine bauliche Abtrennung der
Wohnungen, wie im 3D-Rundgang ersichtlich. Ein gemeinsamer
Verkauf beider Einheiten ist ebenfalls möglich. Verkaufspreis der beiden Einheiten gemeinsam: 350.000,00 €. Wir weisen darauf hin, dass zwischen dem Vermittler und dem zu vermittelnden Dritten ein familiäres oder wirtschaftliches Naheverhältnis besteht. Der Vermittler ist als Doppelmakler tätig. Lage: Die
Wohnung befindet sich in zentraler Lage mit sehr guter Anbindung an die öffentlichen Verkehrsmittel. Bus-
und Straßenbahnhaltestellen sind rasch erreichbar. Geschäfte des täglichen Bedarfs, Gastronomie und Dienstleister liegen ebenfalls in unmittelbarer Nähe. Auch die Universität Graz und die Technische Universität sind gut erreichbar.... [Mehr]