Beschreibung
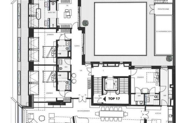
Exquisite Elegance above Vienna's Rooftops ? Your Private Luxury Penthouse in the Heart of the 1st District ? Click for 3D-Tour! Experience extraordinary living comfort in this unique penthouse at Schellinggasse 12, located in the exclusive 1st district of Vienna. This residence sets a new benchmark for luxurious living, combining stunning architecture with the highest-quality features across a living space of 362 m². A private elevator takes you directly into your home, where you will find a spacious layout, sunlit rooms, and the finest materials. The expansive living area, featuring floor-to-ceiling windows, offers breathtaking views of the city skyline. The highlight of this penthouse is the spectacular 248 m² terrace, providing a 360-degree panoramic view over Vienna? s historic rooftops. It? s the perfect space for relaxation, stylish gatherings, or unforgettable sunsets. A private swimming pool with a counter-current system enhances the sense of luxury and relaxation in your home.
Every room is equipped with premium equipment and sophisticated details, emphasizing the exceptional character of this property. The central location in the heart of the 1st district strikes a perfect balance between urban lifestyle and exclusive privacy. Cultural attractions, gastronomy, shopping, and leisure options are just steps away ? here, you live at one of Vienna? s most prestigious addresses. This penthouse is more than a home ? it? s a statement of elegance, comfort, and prestige. 3D-Tour Key Facts About Penthouse Top 17: Living Area: 362.51 m² Upper Level Terrace: 115.16 m² Rooftop Terrace: 133.12 m² with 360-degree views, including direct sight of the iconic St.Stephen? s Cathedral Swimming Pool: with Counter-Current System, 17.29 m² Storage Room: 8.83 m² Private Wine Cellar: 26.50 m² Ceiling Height: 2.65m up to 3m Air Conditioning Smart Home System Private Elevator Access Underground Garage Parking Spaces á ? 120.000,00 What ar... [Mehr]