Beschreibung
MEGA-Familienwohnung mit 4 Zimmern und zwei Bädern und Blick ins Grüne in einer ruhigen Sackstraße gelegen - 8041 Graz - PROVISIONSFREI! Willkommen in Ihrem zukünftigen Zuhause! Diese feine 4-Zimmer-
Wohnung im ersten Obergeschoss eines modernen Neubauprojekts bietet Ihnen nicht nur eine hervorragende Lage im wunderschönen Wohnbezirk Liebenau, sondern auch eine erstklassige Ausstattung zu einem attraktiven Preis-Leistungs-Verhältnis. In einem Gebäude mit nur 8 Wohneinheiten genießen Sie viel Ruhe und Privatsphäre, während Sie gleichzeitig die Nähe zu allen wichtigen Annehmlichkeiten haben. Kleines aber Feines Neubauprojekt mit nur 8 Wohneinheiten, im wunderschönen Wohnbezirk Liebenau! Mit dem
Kauf dieser
Wohnung können Sie praktisch nichts falsch machen, die Lage ist top, das Preis/Leistungsverhältnis passt ebenfalls. Das Einzige was Sie nicht tun sollten ist zu lange zuzuwarten, bei guten Immobilien zögern interessierte Kunden kaum. Der renommierte Bauträger, der bereits zwei Referenz-Projekte
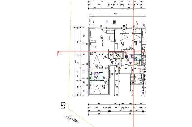
in dieser Straße vorweisen kann, startet das neue Projekt nach 50% -tiger Vorverwertung. Am Plan der Wohnung und der Innengestaltung können Sie gerne Ihre Ideen mit einfließen lassen. Der Bauträger ist bemüht Ihre Wünsche zu erfüllen. FERTIGSTELLUNG DES NEUBAUPROJEKTES ENDE JUNI 2027!!!!!!!!!!!!!!!!!!!!!!!! Fakten zur Top-Zusammenlegung der Top 5 & der Top 6 im 1.OG WNF von 110,77m² Balkon 28,55m² in SW-Ausrichtung 4 Zimmer Lift vorhanden Wohnen/Essen/Kochen auf 44,62m² und Zugang zum Balkon Balkon mit 28,55m² ein Schlafzimmer mit 10,64m² ein weiteres Schlafzimmer auf 12,21m² ein Kinderzimmer mit 11,83m² Badezimmer mit 5,07m², Fenster, Dusche, WC und Waschmaschinenanschluss ein weiters Badezimmer mit 5,07m², Fenster, Dusche und Waschmaschinenanschluss Diele mit 6,84m² Diele mit 2,88m² Vorraum mit 4,42m² Vorraum mit 3m³ Abstellraum 1,10m² ein weiterer Abstellraum mit 1,49m² zwei Keller-Ersatzräume mit jeweils 1,31m² KP der Top 5 & Top 6 (ZUSAMMENLEGUNG) brutto ? 564.718,30 (der Nettopreis beträgt - 9%) KP des Parkplatzes je brutto ? 17.500,00 (zwei Parkpl... [Mehr]