Beschreibung
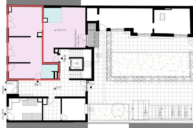
Die moderne Liegenschaft in der Breitenseer Straße 28 entsteht in attraktiver Lage des 14. Bezirks und bietet eine hervorragende Anbindung an den öffentlichen Verkehr sowie ein angenehmes, urbanes Umfeld. Die neu errichtete Einheit im Erdgeschoss überzeugt durch klare, gut nutzbare Grundrisse und lichtdurchflutete Bereiche, die ein angenehmes Arbeitsklima ermöglichen. Die Bürofläche wird erstmals vermietet und steht ab Juli 2026 zur Verfügung. Der Ausbau erfolgt nach Mieterwunsch, sodass individuelle Raumaufteilungen, Materialwahlen und technische Anforderungen optimal berücksichtigt werden können. Dadurch eignet sie sich ideal für Unternehmen, die Wert auf moderne Arbeitswelten und langfristige Planbarkeit legen. - Top EG - ca. 57 m² Gewerbefläche Die Einheit befindet sich im Erdgeschoss und bietet flexible Gestaltungsmöglichkeiten. Dank großer Fensterflächen entsteht ein heller, freundlicher Arbeitsbereich. Der Erstausbau kann gemeinsam mit dem zukünftigen Mieter geplant werden - von
offenen Loftstrukturen bis zu klassisch getrennten Büros ist alles möglich. Die Fläche wird im Rahmen eines langfristigen Mietverhältnisses vergeben. Lage: Die Liegenschaft in der Breitenseer Straße 28 befindet sich in einer gut etablierten Wohn- und Geschäftsgegend des 14. Bezirks mit hervorragender Nahversorgung durch Supermärkte, Cafés und diverse Dienstleister. Die öffentliche Anbindung ist ausgezeichnet: Die Straßenbahnlinie 49 liegt nur wenige Schritte entfernt, die S-Bahn-Station Breitensee ist bequem zu Fuß erreichbar und mit der nahegelegenen U3-Station Hütteldorfer Straße besteht zudem eine schnelle Verbindung in die Wiener Innenstadt. Wir weisen darauf hin, dass zwischen dem Vermittler und dem Auftraggeber ein wirtschaftliches Naheverhältnis besteht. Der Vermittler ist als Doppelmakler tätig.... [Mehr]