Beschreibung
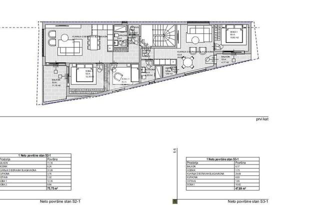
Baugrundstück in Njivice, Insel Krk. Das Grundstück wird mit vollständiger Projektdokumentation für den Bau eines Wohnhauses mit vier Wohneinheiten (Erdgeschoss und zwei Obergeschosse) und Dachterrasse verkauft. Die Baugenehmigung wurde beantragt. Die Infrastruktur (Strom, Wasser, Internet) ist nur 20 m vom Grundstück entfernt. Die Lage ist traumhaft, ca. 500 m vom Strand entfernt. Von den oberen Etagen ist Meerblick zu erwarten. Für weitere Informationen und zur Vereinbarung eines Besichtigungstermins kontaktieren Sie uns bitte unter [Tel] oder in unserer Filiale in Malinska, Dubašljanska 111. Ich freue mich auf Ihre Anfrage per Mail und stehe gerne für Ihre Fragen zur Verfügung. Staatlich geprüfter Immobilientreuhänder Walter Ofner, Tel. [Tel] Weitere Immobilien in Kroatien finden Sie hier. Bei näherem Kaufinteresse empfehlen wir dringend eine rechtliche Abklärung durch die renommierte, deutschsprachige Anwaltskanzlei in Zagreb, mit der wir eng zusammenarbeiten. ID CODE: 7369 Noch nichts
gefunden? Wir informieren Sie über geeignete Immobilienangebote noch vor allen anderen. Legen Sie jetzt Ihren individuellen Suchagenten unter folgendem Link an. Wir schicken Ihnen passende Immobilien exklusiv vorab zu. Suchagent anlegen - https://ofner-immobilien.service.immo/registrieren/de Der Vermittler ist als Doppelmakler tätig. Lage: Das Grundstück wird mit vollständiger Projektdokumentation für den Bau eines Wohnhauses mit vier Wohneinheiten Erdgeschoss und zwei Obergeschosse und Dachterrasse verkauft.... [Mehr]