Beschreibung
? Autark leben im Stelzenhaus beim Wasser ? Ferienhaus bei Tulln auf Pachtgrund zu
verkaufen! ? 3425 Langenlebarn, Nähe Badesee Linkes Donauufer ? FKK-Bereich Dieses charmante Stelzenhaus befindet sich im FKK-Areal der Tullner Au und bietet Naturliebhaberinnen und Naturliebhabern eine einzigartige Möglichkeit, ein naturverbundenes und nachhaltiges Leben zu führen. Der Strom wird umweltfreundlich über eine Photovoltaikanlage erzeugt, die Wasserversorgung erfolgt über einen hauseigenen Brunnen direkt neben dem Gebäude. Das
Haus steht auf einem rund 450? m² großen, nicht eingezäunten Pachtgrundstück und gilt als Superädifikat ? das bedeutet, das
Haus befindet sich im Eigentum, während der Grund gepachtet ist. Der Wohnbereich ist erhöht angelegt, um bei Hochwasser bestmöglichen Schutz zu gewährleisten. Ein Rückzugsort wie kein anderer: Dieses liebevoll gestaltete Stelzenhaus (BJ 2018) bietet echtes Freiheitsgefühl inmitten unberührter Natur. Perfekt für Naturliebhaber, Ruhesuchende und alle,
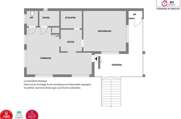
die unabhängig und nachhaltig leben möchten. ? Kaufpreis: ? 180.000,- ? Jahrespacht: ca. ? 600,- ? Wohnfläche: ca. 60? m² auf 2 Ebenen ? Mit dem Auto fährt man direkt bis zum Haus, alternativ kann man auch an der Straße Parken (einen "Abstellplatz" in dem Sinne gibt es nicht) ? Ausstattung: Zwei gemütliche Schlafräume, kleine Sauna, Wohn- & Essbereich, kleine Küche, extra Dusche, großer Vorraum und vieles mehr! Voll ausgestattet &komplett eingerichtet ? einfach einziehen und genießen ? Bauweise: Stelzenhaus, Baujahr 2018, hochwertig gebaut und exzellent gedämmt ? Besonderheit: Perfekt als Ferienimmobilie oder Wochenendhaus ? Technik & Energie ? Autarkie vom Feinsten: * Hausstromkraftwerk mit Photovoltaik-Anlage inkl. Batteriespeicher ? bis zu 4 Tage autarker Strom auch bei Schlechtwetter * Eigener Trinkwasserbrunnen ? unabhängig von der öffentlichen Versorgung * Heizung: Gasbetriebener Kachelofen für wohlige Wärme * Notstromoption: Strom kann bei Bedarf auch über Gas erzeugt werden * Sauna: Betrieb wahlweise mit Holz oder Gas ? Wellness ganzjährig möglich * Lagerfeuerstelle im Garten ? für gemütliche Abende unter freiem Himmel ? Die Liegenschaft liegt idyllisch am linken Donauufer, nur wenige Schritte vom Badesee entfernt ? inmitten eines gepflegten FKK-B... [Mehr]