Beschreibung
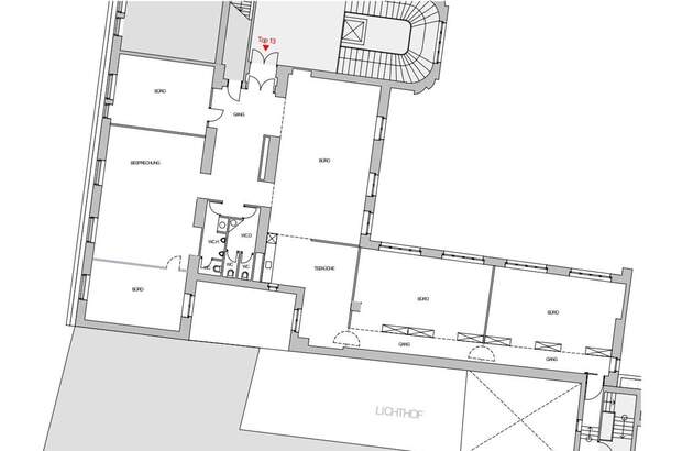
Flächen- und Kostenübersicht Geschoß: 4.OG./4.02 FAB Nutzfläche: 332,60 m² Nettomiete/m²: € 16,00 BK netto /m²: € 2,31 HK netto/m²: € 0,71 Allgemeine Objektbeschreibung Willkommen im Fabianihaus - Architektur, die Eindruck macht. Zur Vermietung gelangt eine großzügige und lichtdurchflutete Bürofläche im 4. Obergeschoß dieses renommierten Objekts. Auf einer Fläche von ca. 333 m² erwartet Sie ein modernes Arbeitsumfeld. Die intelligente Raumaufteilung umfasst 6 separate Büroräume, die sich ideal als Einzelbüros, Team-Spaces oder Meetingräume nutzen lassen. Ein einladender Vorraum empfängt Ihre Klienten und Mitarbeiter gleichermaßen professionell. Für das leibliche Wohl und entspannte Pausen steht eine moderne Teeküche bereit. Der Sanitärbereich ist selbstverständlich getrennt angelegt. Besonders praktisch: Das Objekt verfügt über zwei separate Eingänge, was eine flexible Nutzung (z.B. getrennter Kunden- und Personaleingang) ermöglicht. Dank der Klimaanlage und der außenliegenden Jalousien
bewahren Sie auch an heißen Sommertagen einen kühlen Kopf, während öffenbare Fenster jederzeit für frische Luft sorgen. Befristung: 10 Jahre Kündigungsverzicht: 3 Jahre Kaution: 6 BMM Provision: 3 BMM Ausstattung Diese Fläche lässt keine Wünsche offen und bietet eine hochwertige "Plug & Play"-Infrastruktur: Raumklima: Vollklimatisierung & Fernwärme-Heizung Beschattung: Elektrische Außenjalousien Flexibilität: Öffenbare Fenster & 2 Eingänge Komfort: Personenlift, Küchenzeile, getrennte Toilettenanlagen, Teppichböden, Spiegelrasterleuchten Parken: Garagenplätze stehen direkt im Haus zur Verfügung (optional anmietbar) Energieausweis HWB 178,3 kWh/m².a Lage Der Standort im 3. Bezirk verbindet optimale Erreichbarkeit mit hervorragender Infrastruktur. Das Objekt liegt verkehrsgünstig an der Schnittstelle zwischen Erdberger Lände und Landstraßer Hauptstraße. Erreichbarkeit: Bequem mit dem PKW oder öffentlichen Verkehrsmitteln zu erreichen. Nahversorgung: Zahlreiche Restaurants für den Business-Lunch, Supermärkte und Geschäfte des täglichen Bedarfs befinden sich in fußläufiger Umgebung. Umfeld: Die Nähe zur Klinik Landstraße (ehem. Rudolfstiftung), hochwertigen Hotels sowie Schulen und Kindergärten unterstreicht die Lebendigkeit und Attraktivität dieses Standorts. Haben wir Ihr Interesse geweckt? Zögern Sie nicht, uns für einen unverbindlichen Besichtigungstermin zu kontaktieren. Überzeugen Sie sich selbst von der Qualität dieser Bürofläche im Fabianihaus. Öffentliche Erreichbarkeit U-Bahn: U3 Rochusmarkt (Fußweg 5 Minuten) Schnellbahn: Rennweg Straßenbahn: 71, O Ansprechpartner: Frau Kathrin Fercher Tel.: [Tel] Mehr Objekte finden Sie unter: www.jpi.at Wir haben was für Sie Wir weisen darauf hin, dass wir mit dem Abgeber in ständiger Geschäftsbeziehung stehen und schon aus diesem Grund ein wirtschaftliches Naheverhältnis vorliegt.... [Mehr]