Beschreibung
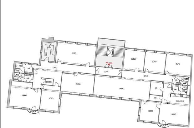
Flächen- und Kostenübersicht Geschoß: 3.OG./ B40 Nutzfläche: ca. 561,07 m² + 3 m² Balkone Nettomiete/m²: € 15,00 BK netto /m²: € 2,33 HK netto/m²: € 0,71 Allgemeine Objektbeschreibung Sichern Sie sich einen begehrten Geschäftsstandort in einem der architektonisch bedeutendsten Gebäude Wiens: dem Fabianihaus in der Barichgasse. Hier trifft historischer Charme auf modernste Ausstattung - perfekt für Unternehmen, die Wert auf eine stilvolle und inspirierende Arbeitsumgebung legen. Die Fläche: Lichtdurchflutete Eleganz mit vielseitigen Optionen Zur Vermietung steht eine ca. 561,07 m² große Bürofläche im 3. Obergeschoss, die durch ihre durchdachte Aufteilung und hervorragende Belichtung besticht. Die Fläche wurde im Zuge einer Generalsanierung 2019/2020 auf den neuesten Stand gebracht und bietet Raum für flexible Arbeitsmodelle. Ideale Struktur: Die Einheit gliedert sich in 10 größtenteils separat begehbare Büroräume, was maximale Privatsphäre und flexible Nutzungsmöglichkeiten (Einzel-, Doppel-
oder kleine Teambüros) ermöglicht. Komfort & Funktionalität: Ein großzügiger Vorraum, eine funktionale Teeküche, ein dedizierter Serverraum, sowie zwei praktische Abstellräume sorgen für einen reibungslosen Büroalltag. Doppelter Zugang: Die Fläche verfügt über zwei separate Eingänge, ideal für die Abtrennung von Geschäftsbereichen oder die Untervermietung kleinerer Einheiten. Ihr privater Außenbereich: 2 Balkone Ein besonderes Highlight sind die 2 Balkone (ca. 3 m² Gesamtfläche), die den Mitarbeitern eine willkommene Auszeit an der frischen Luft und eine attraktive Erweiterung des Arbeitsraumes bieten. Befristung: 10 Jahre Kündigungsverzicht: 3 Jahre Kaution: 6 BMM Provision: 3 BMM Ausstattung - Die umfassende Sanierung garantiert moderne Standards für höchste Produktivität und Wohlbefinden: - Angenehmes Raumklima: Eine integrierte Kühlung sorgt auch an heißen Tagen für einen kühlen Kopf. - Frische Luft: Öffenbare Fenster garantieren eine individuelle und natürliche Belüftung. - Infrastruktur: Getrennte, moderne Sanitärbereiche und eine voll ausgestattete Teeküche. - Nachhaltige Wärme: Die Beheizung erfolgt effizient und umweltfreundlich über Fernwärme. - Ein besonderes Komfortmerkmal ist die im Haus befindliche Garage, die das tägliche Pendeln und den Empfang von Kunden wesentlich vereinfacht. (Anmietung von Stellplätzen nach Verfügbarkeit.) Energieausweis HWB 54,8 kWh/m².a Lage Das Fabianihaus punktet mit seiner ausgezeichneten Adresse und der hervorragenden Anbindung an den öffentlichen Nahverkehr. Die Adresse im 3. Wiener Gemeindebezirk (Landstraße) gilt als prestigeträchtig und ist bekannt für eine harmonische Mischung aus historischer Architektur, modernen Bürogebäuden und gehobenem Wohnen. Die unmittelbare Umgebung bietet eine Vielzahl an Annehmlichkeiten, darunter: Kulinarik & Service: Zahlreiche Cafés, Restaurants und Einkaufsmöglichkeiten für die Mittagspause und den täglichen Bedarf sind fußläufig erreichbar. Erholung: Die Nähe zum Donaukanal und anderen Grünflächen bietet die Möglichkeit für entspannende Pausen. Historisches Flair: Die Nachbarschaft zeugt von architektonischer Qualität und sorgt für ein inspirierendes Arbeitsumfeld. Nutzen Sie die Chance auf diese einzigartige Bürofläche! Öffentliche Erreichbarkeit U-Bahn: U3 Rochusmarkt (Fußweg 5 Minuten) Schnellbahn: Rennweg Straßenbahn: 71, O Ansprechpartner: Frau Kathrin Fercher Tel.: [Tel] Mehr Objekte finden Sie unter: www.jpi.at Wir haben was für Sie Wir weisen darauf hin, dass wir mit dem Abgeber in ständiger Geschäftsbeziehung stehen und schon aus diesem Grund ein wirtschaftliches Naheverhältnis vorliegt.... [Mehr]