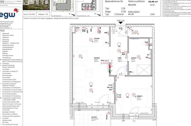
2-Zimmer-Wohnung mit Balkon, Top 26

3500 Krems / 54,96m² / 2 Zimmer

#Balkon #Kellerabteil #Terrasse

Beschreibung

Koloman Wallisch Straße 9a / Top 26, 3500 Krems(Objekt Nr. 37370-026)? 2 Zimmer inklusive Wohnküche? 1 Vorraum? 1 Bad mit WC? 1 Abstellraum? 1 Balkon (6,12 m²)? 1 Kellerabteil Ausstattung Wohnung? bodenebene Dusche, Verstärkung hinter Fliesen zur Montage für ev. Haltegriffe Die benötigten Eigenmittel belaufen sich auf ? 4.033,67.