Beschreibung
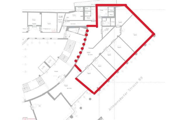
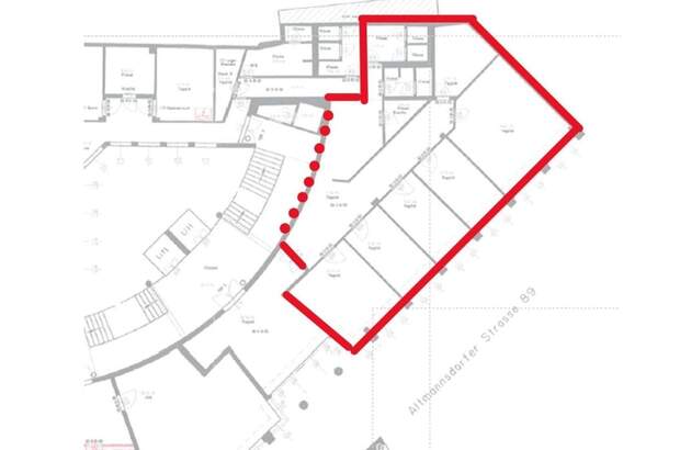
Flächen- und Kostenübersicht 1. OG Top 4 ca. 227 m² Hauptmietzins netto/Monat: € 11,00/m² Betriebskosten netto/Monat: € 2,75/m² Allgemeine Objektübersicht An einem strategisch hervorragenden Knotenpunkt Wiens, direkt an der frequentierten Altmannsdorfer Straße, gelangt diese ca. 227 m² große Bürofläche im 1. Obergeschoss zur sofortigen Vermietung. Die Einheit besticht durch ihre intelligente Raumaufteilung: Vom großzügig dimensionierten Vorraum, der sich ideal als Empfangsbereich eignet, gelangen Sie in sechs separat begehbare Büroräume. Diese Struktur ermöglicht sowohl konzentriertes Einzelarbeiten als auch effiziente Teamstrukturen. Für das Wohlbefinden Ihrer Mitarbeiter und Kunden sorgen eine bereits vorhandene Teeküche sowie getrennte Sanitäranlagen. Dank der teilweise vorhandenen Kühlung und öffenbaren Fenster ist ein angenehmes Raumklima auch an heißen Sommertagen gewährleistet. Ein besonderes Highlight ist die enorme Sichtbarkeit des Gebäudes - nutzen Sie diesen Standortvorteil für
Ihre Unternehmenspräsenz!. Provision: 3 BMM Miertdauer: befristet Verfügbar: sofort Ausstattung - Flexibles Arbeiten: 6 separat begehbare, helle Büroräume. - Empfang: Großzügiges Entrée, ideal als Warte- oder Empfangsbereich. - Klima & Luft: Angenehme Arbeitsatmosphäre durch öffenbare Fenster und teilweise installierte Kühlung. - Sozialbereiche: Praktische Teeküche und gepflegte Sanitäranlagen. - Bodenbelag: Strapazierfähige und trittschallgedämmte Teppichböden schaffen eine warme Atmosphäre und sorgen für Ruhe im hektischen Büroalltag. - Beleuchtung: Ergonomische Spiegelrasterleuchten garantieren eine optimale, blendfreie Ausleuchtung - perfekt geeignet für langes Arbeiten am Monitor. - IT-Infrastruktur: Ein eigener Serverraum steht zur Verfügung, um Ihre Hardware sicher und getrennt vom offenen Bürobereich zu vernetzen. - Parken: Stellplätze in der hauseigenen Tiefgarage verfügbar. Energieausweis HWB: 71,99 kWh/m²a Lage Der Standort an der Kreuzung Altmannsdorfer Straße und Breitenfurter Straße garantiert nicht nur eine schnelle Erreichbarkeit, sondern auch eine optimale Nahversorgung für die Mittagspause. Die markante Ecklage sorgt zudem für eine hohe Werbewirksamkeit und Sichtbarkeit Ihres Unternehmens. Das Büro ist hervorragend an das öffentliche Verkehrsnetz angeschlossen. Ihre Mitarbeiter erreichen den Arbeitsplatz stressfrei und schnell. Öffentliche Verkehrsanbindung U-Bahn: U6 - Am Schöpfwerk (ca. 6 min Fußweg) Straßenbahnlinie 62 Autobuslinien 16A und 62A S-Bahn-Haltestelle Hetzendorf Ansprechpartner: Frau Kathrin Fercher Tel.: [Tel] Mehr Objekte finden Sie unter: www.jpi.at Wir haben was für Sie Wir weisen darauf hin, dass wir mit dem Abgeber in ständiger Geschäftsbeziehung stehen und schon aus diesem Grund ein wirtschaftliches Naheverhältnis vorliegt.... [Mehr]