Beschreibung
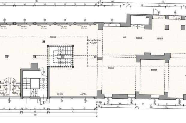
barrierefreie Geschäftsfläche im Kaufpark Leibnitz zu vermieten! Bestandsobjekt Leibnitz, Nahversorgungszentrum Nutzflächen von ca. 170 m² bis 550 m² Top 20 im Erdgeschoss 1A-Standort Zentrum, gute Sichtlage gute Frequenz und Infrastruktur barrierefreier Eingang großer Verkaufsraum mit Auslage Objektzustand Edelrohbau Innenausbau durch Mieter möglich eigene Kundenparkplätze für das Geschäft direkt vor dem Eingang über 300 Kundenparkplätze stehen zur Verfügung provisionsfrei Im Kauf-Park sind namhafte Geschäfte, ein Café, Restaurant und ein Fitnessstudio vor Ort: Penny Markt 11Teamsports Café Sowieso Trattoria da Checo Clever Fit Studio Leoni´s Imbiss Lage: Der KAUF-PARK Leibnitz liegt in Hauptplatz Nähe in der Bezirkshauptstadt Leibnitz. Im Zentrum der südsteirischen Region zwischen den Ballungszentren Graz und Marburg. Sehr viele Parkplätze sind vorhanden. Makleranfragen nicht erwünscht. ohne-makler (OM) ist weder Anbieter noch Vermittler der Immobilie. OM betreibt eine Plattform für Immobilieneigentümer
, die unter anderem die gleichzeitige Veröffentlichung einzelner Inserate auf mehreren Immobilienportalen ermöglicht. Die Inhalte dieser Inserate werden ausschließlich von Dritten verantwortet. Für die Richtigkeit, Vollständigkeit oder Rechtmäßigkeit der Angaben übernimmt OM keine Haftung. Hinweise auf mögliche Rechtsverstöße können jederzeit gemeldet werden und werden nach Prüfung umgehend bearbeitet.... [Mehr]