Beschreibung
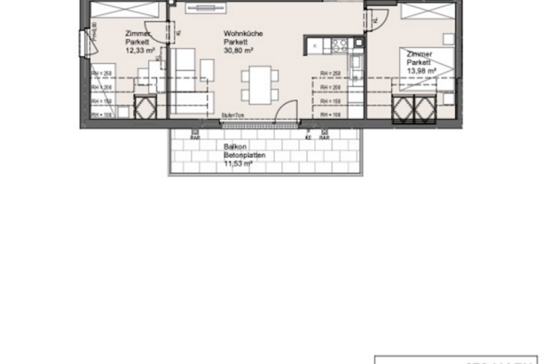
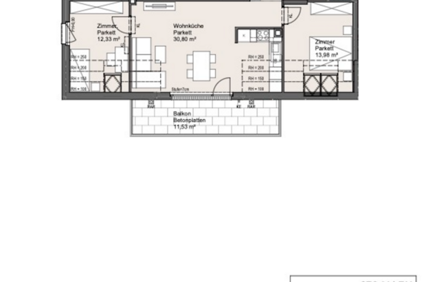
Top 11 | 3 Zimmer | ca. 73 m² + ca. 12 m² Freifläche Die ca. 73? m² große
Wohnung befindet sich im 2.? Liftstock und verfügt über eine offene Wohnküche, einen ca. 12? m² großen Balkon sowie zwei Zimmer mit vielseitigen Nutzungsmöglichkeiten. Alle Räume sind zentral von der Wohnküche aus begehbar und mit großflächigen Fenstern ausgestattet. Raumaufteilung: Abstellraum: ca. 1,14? m² Vorraum: ca. 8,17 m² Wohnküche: ca. 30,80? m² Zimmer: ca. 13,98 m² Zimmer: ca. 12,33? m² Bad: ca. 4,91? m² WC: ca. 1,85 m² Balkon: ca. 11,53? m² Ein Kellerabteil mit ca. 2,86? m² ist der
Wohnung zugeordnet. Besonders hervorzuheben: Der Bau hat bereits begonnen ? das ermöglicht Ihnen als Käufer, gemeinsam mit dem Architekten individuelle Anpassungen in der Raumgestaltung vorzunehmen und Ihre persönlichen Wohnideen zu verwirklichen (solange es noch möglich ist). Die Architektur ist klar und zeitgemäß, das Wohnkonzept auf langfristige Qualität ausgerichtet: Alle
Wohnungen sind barrierefrei zugänglich. Beheizt wird
mittels Luft/Wasser-Wärmepumpe , ergänzt durch eine Photovoltaikanlage zur Unterstützung des Allgemeinstroms. Eine Tiefgarage mit gesamt 19 Stellplätzen , steht Ihnen zur Verfügung. Technische Ausstattung & Komfort: Wärmepumpe Photovoltaik/Solaranlage zur Reduktion von Energie- und Betriebskosten Fußbodenheizung mit Raumthermostaten Fußbodentemperierung in sämtlichen Zimmern Hochwertige Innenausstattung (Eichenparkett, Feinsteinfliesen u.v.m.) 3? fach verglaste Kunststoff? Alu? Fenster und Sonnenschutz in allen Wohnungen (Rollladen, Raffstores, Markisoletten) Kleinkinderspielplatz auf Eigengrund Kaufpreis: Der Verkaufspreis beläuft sich auf Euro 509.000.- Diese Wohnung kann auch als Vorsorge- / Anlagewohnung mit Umsatzsteuerausweisung (weitere Vermietung verpflichtend!) erworben werden: Anlegerpreis: Euro 458.558,56.- &n... [Mehr]