Beschreibung
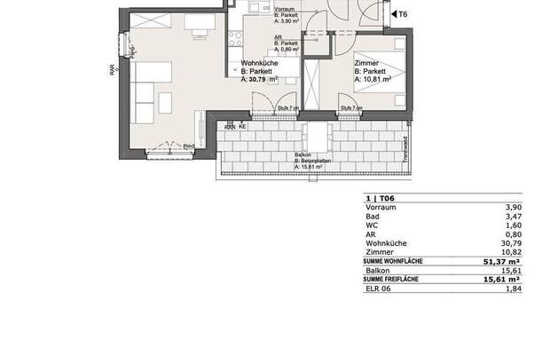
Top 06a | 2 Zimmer | ca. 51? m² + ca. 16? m² Balkon Die
Wohnung liegt im 1. Liftstock und bietet mit ihrer ca 30,75m² Wohnküche und einem Schlafzimmer eine perfekte Raumaufteilung für Singles und Paare. Eine kleine Niesche schafft eine sinnvolle Trennung zwischen Wohnzimmer und Küche, behält aber das offene Raumambiente. Der Balkon mit ca. 16? m² verläuft über die gesamte Wohnungsbreite und ist sowohl von der Wohnküche als auch vom Schlafzimmer zugänglich. Raumaufteilung: ? Wohnküche: ca. 30,79m² ? Schlafzimmer : ca. 10,81? m² ? Bad: ca. 3,47? m² ? WC separat: ca. 1,60? m² ? Vorraum: ca. 3,90? m² ? Abstellraum: ca. 0,80? m² ? Balkon: ca. 15,61? m² Ein Kellerabteil mit ca. 1,84? m² ist der
Wohnung zugeordnet. Aktuell wird die
Wohnung als 3 Zimmerwohnung fertiggestellt, ist aber mit geringem baulichen Aufwand zu einer 2 Zimmerwohnung veränderbar. Wohnbauprojekt "K5"- geplante Fertigstellung Ende 2025 Nahe dem Mühlwasser in einer ruhigen Seitengasse, entsteht das Neubauprojekt "K5" mit insgesamt
30 Eigentumswohnungen. Die Einheiten verfügen über 2 bis 4 Zimmer und Wohnflächen zwischen ca. 38 und 101? m² ? jeweils mit Balkon, Terrasse oder Eigengarten. Das Projekt ist klimaaktiv-zertifiziert und setzt auf eine nachhaltige Bauweise mit langfristigem Fokus: Energieversorgung über eine Wasser-Wasser-Wärmepumpe, Photovoltaikanlage am Dach sowie moderne Dämmung sorgen für niedrige Betriebskosten und ein angenehmes Raumklima. Alle Wohnungen sind barrierefrei zugänglich, ein Lift ist vorhanden. In der Tiefgarage stehen 17 Stellplätze zur Verfügung. Technische Ausstattung & Komfort: Wasser-Wasser-Wärmepumpe in Splitausführung (Kühlung & Heizung) Photovoltaik/Solaranlage zur Reduktion von Energie- und Betriebskosten Fußbodenheizung mit Raumthermostaten Fußbodentemperierung in sämtlichen Wohnbereichen Elektrische Handtuchheizkörper in den Bädern Split-Klimageräte in den Dachgeschosswohnungen Hochwertige Innenausstattung (Eichenparkett, Feinsteinfliesen u.v.m.) 3? fach verglaste Holz? Alu? Fenster und Sonnenschutz in allen Wohnungen (Rollladen, Raffstores, Markisoletten) Kleinkinderspielplatz auf Eigengrund Ka... [Mehr]