Beschreibung
Stg. 2 Top 13 | 2 Zimmer | ca. 88 ? m² + ca. 23 ? m² Freifläche Die helle, loftartige
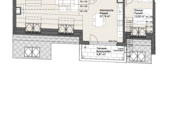
Wohnung bietet auf ca. 88? m² ein großzügiges Raumgefühl. Herzstück ist die ca. 58? m² große Wohnküche, die durch bodentiefe Fenstertüren und mehrere Dachfenster lichtdurchflutet ist. Zusätzlich steht ein weiteres, vielseitig nutzbares Zimmer zur Verfügung. Von der Wohnküche aus gelangt man auf die ca. 7? m² große Terrasse, die wiederum Zugang zur ca. 16? m² großen Dachterrasse bietet. Raumaufteilung: Vorraum: ca. 8,12? m² Wohnküche: ca. 57,74? m² Zimmer: ca. 13,92? m² Bad: ca. 4,78? m² WC: ca. 1,93? m² Abstellraum: ca. 1,55? m² Terrasse: ca. 6,67? m² Dachterrasse: ca. 16,75? m² Ein Kellerabteil mit ca. 2,04? m² ist der
Wohnung zugeordnet. Besonders hervorzuheben: Der Bau hat bereits begonnen ? das ermöglicht Ihnen als Käufer, gemeinsam mit dem Architekten individuelle Anpassungen in der Raumgestaltung vorzunehmen und Ihre persönlichen Wohnideen zu verwirklichen (solange es noch möglich ist). Die Architektur
ist klar und zeitgemäß, das Wohnkonzept auf langfristige Qualität ausgerichtet: Alle Wohnungen sind barrierefrei zugänglich. Beheizt wird mittels Luft/Wasser-Wärmepumpe , ergänzt durch eine Photovoltaikanlage zur Unterstützung des Allgemeinstroms. Eine Tiefgarage mit gesamt 19 Stellplätzen , steht Ihnen zur Verfügung. Technische Ausstattung & Komfort: Wärmepumpe Photovoltaik/Solaranlage zur Reduktion von Energie- und Betriebskosten Fußbodenheizung mit Raumthermostaten Fußbodentemperierung in sämtlichen Zimmern Hochwertige Innenausstattung (Eichenparkett, Feinsteinfliesen u.v.m.) 3? fach verglaste Kunststoff? Alu? Fenster und Sonnenschutz in allen Wohnungen (Rollladen, Raffstores, Markisoletten) Kleinkinderspielplatz auf Eigengrund Kaufpreis: Der Verkaufspreis beläuft sich auf Euro 589.000.- Diese Wohnung kann auch als Vorsorge- / Anlagewohnung mit Umsa... [Mehr]