Es können maximal 99 Objekte in der Merkliste gespeichert werden.
Durch Klicken auf eine Social Media Anmeldung akzeptiere ich die Nutzungsbedingungen & Datenschutzrichtlinie.
Durch Klicken auf Anmelden akzeptiere ich die Nutzungsbedingungen & Datenschutzrichtlinie.
Passwort vergessen?
Noch nicht registriert? Jetzt kostenlos registrieren.
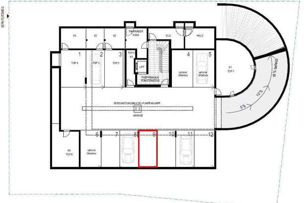
€ 90,-
€ 6,92 / m²