Beschreibung
Was für eine einmalige Gelegenheit! Der Vermieter legt ein
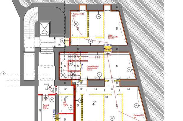
Geschäftslokal im Erdgeschoß mit einem Bereich des Kellers zusammen und sucht einen passenden, langfristigen Mieter! DIE SENSATIONELLE LAGE: Mehr City-Lage ist kaum möglich: Zwischen Stephansplatz und Schwarzenbergplatz gelegen, ist sogar das Ronacher Theater direkt nebenan. HAUS & BÜRO: Das Gebäude ist ein wunderschöner Altbau, der durch den Vermieter bestens in Stand gehalten wird. Das zur Vermietung gelangende Objekt verfügt über ca. 129 m² im Erdgeschoß (zuzüglich Innenhofgarten ), mit großen Schaufenstern auf die Straße, sowie weiteren ca. 124 m² im Kellergeschoß . Mit dem zukünftigen Mieter soll besprochen werden, welche räumlichen Anforderungen dieser mitbringt, sodass auf diese im Zuge des Umbaus Rücksicht genommen werden kann. Auf den Bildern (Visualisierungen) sind beispielhafte Nutzungsmöglichkeiten ersichtlich. Möglich ist jegliche Nutzung (Büro, Galerie, Einzelhandel,...), mit Ausnahme Gastronomie. Die geplante Aufteilung
der insgesamt 252,70 m² können Sie beigefügtem Plan entnehmen. PREISINFORMATION: Die Nettomiete (inklusive Betriebskosten) beläuft sich auf 6.799,16 € und ist jeden Cent wert. Die Bruttomiete inklusive Umsatzsteuer beträgt 8.158,99 €. Besichtigungen sind ab sofort nach Terminvereinbarung möglich! Details zum Zustand des Objekts und einer allfälligen Befristung sind in persönlichen Gesprächen zu klären. Der geplante Umbau startet voraussichtlich im Jänner 2026, sodass im Laufe des Frühling 2026 die Übergabe an den Mieter erfolgen könnte INTERESSE? Um Ihnen die erforderlichen Dokumente senden zu können, ersuchen wir um Anfrage direkt über die Immobilienplattform Ihrer Wahl unter Angabe von Namen, Telefonnummer und E-Mail-Adresse! Für weitere Informationen steht Ihnen Herr Christoph Krenn, MA unter der Telefonnummer [Tel] oder per E-Mail unter [Email] zur Verfügung. Infrastruktur / Entfernungen Gesundheit Arzt <500m Apotheke <500m Klinik <1.000m Krankenhaus <1.000m Kinder & Schulen Schule <500m Kindergarten <1.000m Universität <500m Höhere Schule <1.500m Nahversorgung Supermarkt <500m Bäckerei <500m Einkaufszentrum <500m Sonstige Geldautomat <500m Bank <500m Post <500m Polizei <1.000m Verkehr Bus <500m U-Bahn <500m Straßenbahn <500m Bahnhof <500m Autobahnanschluss <3.000m Angaben Entfernung Luftlinie / Quelle: Open Street Map Lage: Ronacher Theater, Stephansplatz, Stadtpark, Schwarzenbergplatz, Karlsplatz / Oper... [Mehr]