Beschreibung
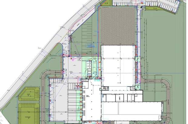
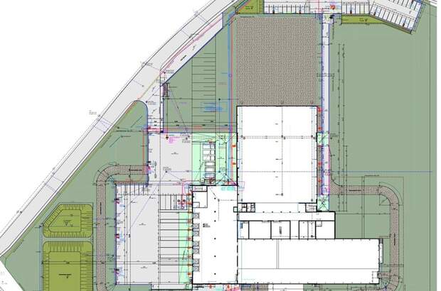
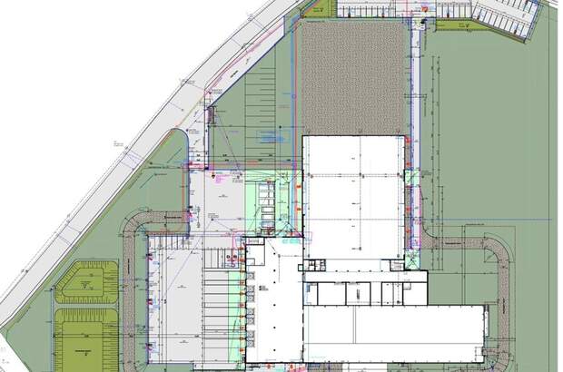
Das Industrie- und Gewerbeareal in Holzpark 1, 3902 Vitis, verfügt über eine Gesamtfläche von 64.628 m² und stellt einen hochattraktiven Standort im Waldviertel, Niederösterreich, dar. Vitis liegt nahe der tschechischen Grenze im Bezirk Waidhofen an der Thaya und ist Teil einer Region mit einer Einwohnerzahl von ca. 215.000. Von der Gesamtfläche sind bereits rund 34.000 m² bebaut, inklusive Außenanlagen und Einfriedung, während etwa 31.000 m² als Grundstücksreserve zur Verfügung stehen. Die Widmung als Bauland Betriebsgebiet unterstreicht die gewerbliche Ausrichtung des Standortes. Ein weiteres herausragendes Merkmal ist das erhebliche Erweiterungspotenzial: Mündliche Vorabstimmungen mit der Gemeinde ermöglichen den Bau von bis zu vier weiteren Produktionshallen mit einer zusätzlichen Gesamtfläche von bis zu 15.469 m². Dies eröffnet Ihnen einzigartige Möglichkeiten für zukünftiges Wachstum. Lage: Die Lage nahe der tschechischen Grenze bietet eine strategische Ausgangsposition für grenzüberschreitende
Transporte. Die Anbindung an das überregionale Straßennetz erfolgt über Landesstraßen, um den Transport von Rohstoffen und Fertigprodukten zu gewährleisten. Hinweis gemäß Energieausweisvorlagegesetz: Ein Energieausweis wurde vom Eigentümer bzw. Verkäufer, nach Aufklärung über die ab 1.12.2012 geltende generelle Vorlagepflicht, noch nicht vorgelegt.... [Mehr]